找回密码
 立即注册

QQ登录

只需一步,快速开始


vray材质库
查看: 5456|回复: 1

[商业] 香港的雷顿中心夏恩精品店

[复制链接]

该用户从未签到

2348

主题

1085

回帖

8万

积分

版主

积分
81220
发表于 2011-12-6 13:42:00 | 显示全部楼层 |阅读模式
Shine at the Leighton Centre by Nelson Chow

If you liked the last monochrome boutique with a checkout in the changing rooms by architect Nelson Chow, here’s another one.

Both stores were completed in Hong Kong for fashion brand Shine, who showcase clothing by different designers.

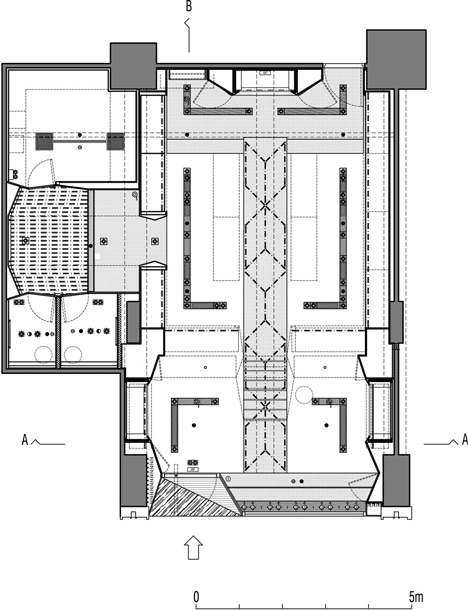
Visitors enter through a faceted glass facade into a symmetrical gallery room at the front of store, where mannequins model new collections.

Fluorescent tube lights are arranged into star-shaped patterns on the ceiling, while white shelves displaying bags and shoes create bright recesses along the black-painted walls.

A staircase that appears to hover above the floor leads shoppers to the first-floor dressing rooms and sales area, where garments hang from suspended metal grids.

 
 
Photography is by Dennis Lo Designs.
Here’s some more text from Chow:
Shine Fashion Store
Shine is one of Hong Kong’s most renowned high end multi-brand fashion stores, known for bringing pioneering foreign brands to the trend conscious locals. For the second shop located in the high traffic youth-oriented shopping district of Causeway Bay, the owner specifically requested for NCDA to produce a design that would reinforce the company’s identity as an avant-garde and experimental fashion store.

Inspired by the name of the store, a 7m tall asymmetrical glowing star-like structure forms the primary street identity along Leighton Road, attracting both pedestrians and motorists.

The pristine white shell embodies a black interior wall that further unfolds to create three main rooms: The entrance gallery, the upper level sales area & finally the dressing room. Equipped with 3 display platforms and suspended mannequins, the entrance gallery acts as an extension of the window display and forms a stage for the evolving seasonal Merchandise displays.

The crystalline black wall unfolds to form a suspended stair leading to the upper level sales area, and a row of geometrically arranged fluorescent lights is placed above the stair to emit a cool futuristic sci-fi glow which goes in line with the progressive spirit of the clothing.

The upper level sales area showcases the men’s and women’s ready-to-wear collections in the black crystalline niches on both sides.

Special attention is given to the display of the latest pieces, which are suspended on two central uplit racks. Pieces from various designers are presented against a monochromatic background.



A continuous metal edge above each niche allows for the flexible placement of magnetic brand tags in order to showcase the evolving selection of designers.

Finally, the dressing room conceals the leather padded fitting rooms and cashier entrances behind a continuously folded kaleidoscopic mirror partition, forming the most intimate and private area within the overall shop.

Inspired by music videos and computer generated effects, the dressing room enclosure creates a ‘hyper-real state’, where the customer can see multiple reflections of themselves at different angles in the mirror.

The back lit stretched ceiling creates a false sense of depth to the 2m headroom yet provides abundant light to the person trying on the clothes.
[Search:DCION]

The design of the Shine flagship store in the Leighton Center showcases how the idea of a ‘shining star’ could be translated architecturally into a fashion retail space, creating a visually striking yet highly functional contemporary store.
Project Title: Shine Fashion Store
Location: Shop G09, 77 Leighton Road, The Leighton Center, Causeway Bay, Hong Kong
Design: NC Design & Architecture Ltd. (NCDA)
Design Team: Nelson Chow (NCDA)
Client: Shine Trading (HK) Ltd.

本帖子中包含更多资源

您需要 登录 才可以下载或查看,没有账号?立即注册

×
.....提示:网站下载资源都有备份,如遇到下载地址失效请及时联系管理员(QQ:3459039404)恢复下载地址(个别无法恢复会退币)

该用户从未签到

2

主题

42

回帖

82

积分

新手上路

积分
82
发表于 2014-5-13 09:22:00 | 显示全部楼层
太需要了  
一直很努力
回复 支持 反对

使用道具 举报

您需要登录后才可以回帖 登录 | 立即注册

本版积分规则

室内设计工具箱

QQ|手机版|Archiver|室内人 ( 辽ICP备05022379号 )

GMT+8, 2026-3-23 04:22

Powered by Discuz! X3.5关于室内人 | QQ:3459039404(客服) | Email:snren_com@163.com

© 2001-2026 Discuz! Team.

快速回复 返回顶部 返回列表