找回密码
 立即注册

QQ登录

只需一步,快速开始


vray材质库
查看: 4516|回复: 0

[文化] 美国的德卢斯大学土木工程系

[复制链接]

该用户从未签到

2348

主题

1085

回帖

8万

积分

版主

积分
81220
发表于 2011-10-24 09:02:00 | 显示全部楼层 |阅读模式
The University of Minnesota Duluth Civil       明尼苏达州德卢斯大学土木工程系建筑景观规划设计|Ross-Barney Architects


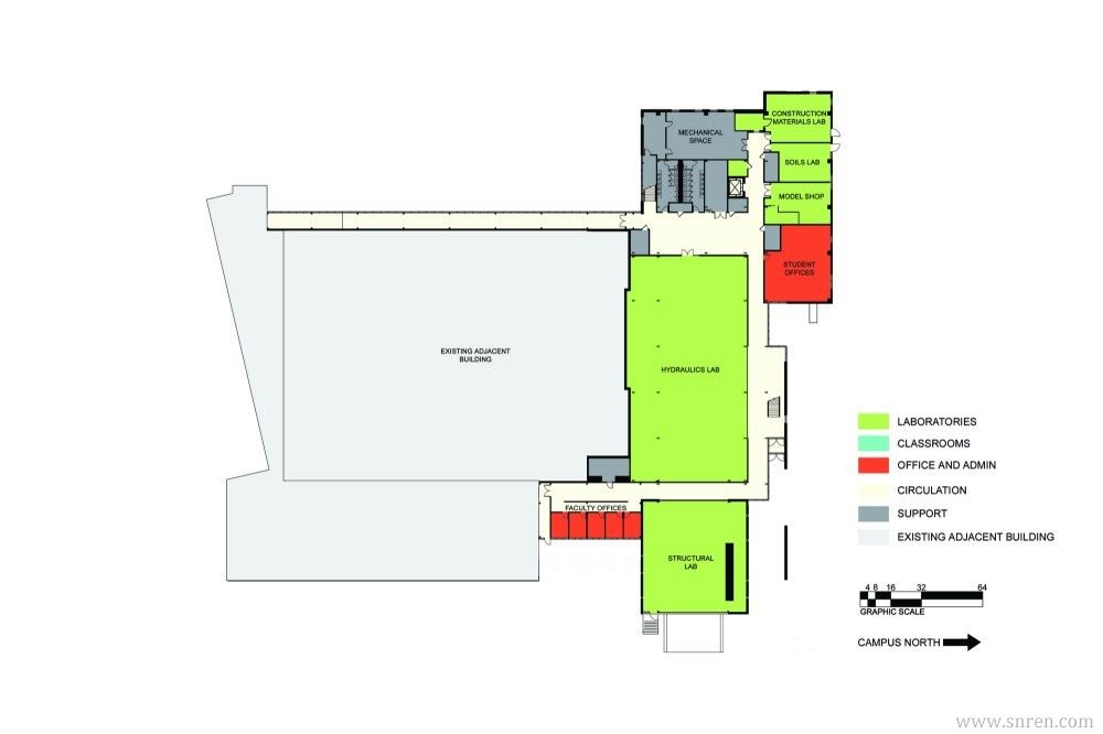
Engineering Building The university= The University of Minnesota Duluth has instituted a new Bachelor of Science degree in Civil Engineering (BSCE). The new building, completed in 2010, provides approximately 35,300 gross square feet to house classrooms, instructional and research laboratories, and office space for the Civil Engineering Department. The new building builds on and reinforces the existing circulation patterns that are part of the UMD campus. The new Science and Engineering Building is LEED Gold Certified. A healthy environment for the occupants was achieved by integrating sustainable strategies that are part of the LEED rating system for new construction. These include: increased ventilation, use of low-emitting construction materials, advanced lighting control, advanced thermal comfort control, access to daylight and views for occupied spaces, and the use of an under-floor air distribution system. Native plantings and rain gardens dot the east and west elevations. A green roof with native plant materials helps to reduce storm runoff, cool the building, reduce noise, and reduce glare from surrounding buildings.
The Hydrology Lab and Structural Lab are two story areas that require ceiling heights of 25+ feet and are located on the ground level. Classrooms and faculty offices are located on the second level. The new Swenson building connects the to the existing Voss Kovach Hall adjacent to the main entrance of the older structure. The Link -a one story glazed corridor facing the Library- provides an additional connection between the old and new buildings.
The design of the new Civil Engineering Building highlights construction and site systems related to the field of study. These include oversized scuppers that channel storm water from the roof to the trio the monumental French drain, two 20 ton gantry cranes located within the Structural Lab and Hydrology Lab, and a precast concrete Structural Lab with installation materials left in place for learning.
Using exterior materials that are consistent with other existing campus buildings and using locally available materials from excavation and mining in the area, the building maintains a connection to the campus and to the regional economy.
Project Data: General Program: 35,300 Square Feet LEED Certification: Gold Construction Cost: $12,100,000 Year Built: 2010




Project Data:
General Program:        35,300 Square Feet
LEED Certification:        Gold
Construction Cost:        $12,100,000
Year Built:        2010

























































本帖子中包含更多资源

您需要 登录 才可以下载或查看,没有账号?立即注册

×
.....提示:网站下载资源都有备份,如遇到下载地址失效请及时联系管理员(QQ:3459039404)恢复下载地址(个别无法恢复会退币)
您需要登录后才可以回帖 登录 | 立即注册

本版积分规则

室内设计工具箱

QQ|手机版|Archiver|室内人 ( 辽ICP备05022379号 )

GMT+8, 2026-3-22 21:49

Powered by Discuz! X3.5关于室内人 | QQ:3459039404(客服) | Email:snren_com@163.com

© 2001-2026 Discuz! Team.

快速回复 返回顶部 返回列表