找回密码
 立即注册

QQ登录

只需一步,快速开始


vray材质库
查看: 6328|回复: 0

[办公] 澳大利亚林茲的GKK牙科诊所

[复制链接]

该用户从未签到

2348

主题

1085

回帖

8万

积分

版主

积分
81220
发表于 2011-10-21 08:58:00 | 显示全部楼层 |阅读模式
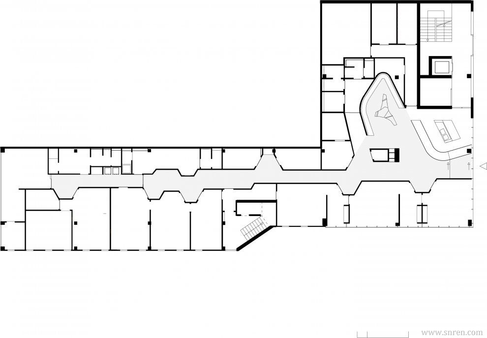
GKK Dental Ambulatory


The draft was defined by the clinic’s central theme, with the concept of a double row room structure for the extension, being derived from the two-dimensional illustration of a set of teeth. Five treatment rooms, as well as one room for prosthetic dentistry, are lined up next to each other on the southern side, benefiting fully from the natural sunlight. The separation of the rooms and their doorways are clearly defined by angular niches recessed into the walls that help guide the patients to their destination.

The ubiquitous use of the clinical colour white, accentuated by the mint-coloured Corporate-Identity-Green of the regional medical insurance company, is the perfect analogy for hygiene and fresh breath. A white and soft PVC floor coating and a transparent back-lit ceiling made of polycarbonate web plates compensate for the reduced daylight in the hall and waiting area. The rolled-on pattern on the walls, as well as the mirrored “mouth hygiene” area with its display cabinets, completes the friendly and almost glamorous character. This interpretation is successfully continued with a curved reception and seating area with desk and bench representing the throat, complemented by a red seating element as the tongue.

The high degree of technology typical of such a facility remains mostly in the background to produce surroundings that are considerate to the patient’s needs. It can only be seen through the translucent ceiling.

















本帖子中包含更多资源

您需要 登录 才可以下载或查看,没有账号?立即注册

×
.....提示:网站下载资源都有备份,如遇到下载地址失效请及时联系管理员(QQ:3459039404)恢复下载地址(个别无法恢复会退币)
您需要登录后才可以回帖 登录 | 立即注册

本版积分规则

室内设计工具箱

QQ|手机版|Archiver|室内人 ( 辽ICP备05022379号 )

GMT+8, 2026-3-22 20:31

Powered by Discuz! X3.5关于室内人 | QQ:3459039404(客服) | Email:snren_com@163.com

© 2001-2026 Discuz! Team.

快速回复 返回顶部 返回列表