找回密码
 立即注册

QQ登录

只需一步,快速开始


vray材质库
查看: 4712|回复: 0

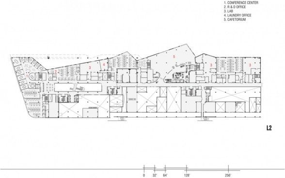
[办公] 美国斯科茨代尔的汉高北美消费产品总部

[复制链接]

该用户从未签到

2348

主题

1085

回帖

8万

积分

版主

积分
81220
发表于 2011-10-18 07:57:00 | 显示全部楼层 |阅读模式
Office Building Design by will bruder+PARTNERS


Office building design is completed designed by the collaboration architect will bruder+PARTNERS. This office building design project is intended for the Henkel North American Concumer Products Headquarter. It covers area for about 348,000 square meters and processed in 2008.
Created by collaboration between will bruder+PARTNERS, this office architecture is covers area for about 348,000 square meters. The architect created this office is intended for their client, the client asked them for designed the Henkel North American Consumer Products Headquarter.
This building design is completely integrated into its broader context of the Sonoran Desert. It is sited on the compact sub-5 acre parcel in a developing the urban area of Scottsdale, Arizona. This Henkel headquarter will be an innovative collaborative center.
Office Building Design Architecture By the architect, this building is conceived as a crystalline cloud which is floating over a desert mesa; it is a graceful presence at the prominent intersection of Scottsdale Road and the 101 freeway. Two levels of the glass curtain wall are comprises the four story structure, it is environmentally shaded by a double ceramic frit, above two levels clad in the aluminum panels, deeply textured plaster and a native Ash fork sandstone.
This office, viewed from the freeway, its 700 foot south elevation is a 7.5 second experience against the backdrop of the McDowell Mountains. A casual seven minute walk moves along a folded facade on the north, it is animated by a Porte cochere entry under a 150 foot beam, and the prow of a ‘cafetorium’ ridgeline, it is where the 800 person all-company meeting can be held. Both of these are the focal to the alignments of the streets to the north.
Believing in its corporate citizenship, the facility has taken environmentally responsibility seriously. It has also been a serious charge to make a great and productive working citizenship. The company, Henkel, is pursuing the LEED silver rating for the design project.
The building makes extensive use of thermal and shading technologies, raised floor systems and indirect lighting in office areas, and sensitive use of daylight. In Arizona intense light can be a source of fatigue and heat gain. Here it is filtered and diffused to spread evenly and deeper into floor plates, always maintaining connection to the majestic sky and landscape of this place.



























本帖子中包含更多资源

您需要 登录 才可以下载或查看,没有账号?立即注册

×
.....提示:网站下载资源都有备份,如遇到下载地址失效请及时联系管理员(QQ:3459039404)恢复下载地址(个别无法恢复会退币)
您需要登录后才可以回帖 登录 | 立即注册

本版积分规则

室内设计工具箱

QQ|手机版|Archiver|室内人 ( 辽ICP备05022379号 )

GMT+8, 2026-3-22 18:53

Powered by Discuz! X3.5关于室内人 | QQ:3459039404(客服) | Email:snren_com@163.com

© 2001-2026 Discuz! Team.

快速回复 返回顶部 返回列表