找回密码
 立即注册

QQ登录

只需一步,快速开始


vray材质库
查看: 4007|回复: 0

[文化] 美国的纽约大学语言学系

[复制链接]

该用户从未签到

2348

主题

1085

回帖

8万

积分

版主

积分
81220
发表于 2011-10-11 09:46:00 | 显示全部楼层 |阅读模式
1100 Architect Renovates NYU’s Dept. of Linguistics Into a Vibrant Naturally Lit Space


It's a fair bet that at the Department of Linguistics, communication is pretty important. So when NYU set out to renovate their historic 6-story building in Greenwich Village, they wanted to be sure that the new space would promote interaction and communication between students and faculty. Part of encouraging interaction in the space was to incorporate more natural daylight into common areas, offices, classrooms, and labs. The renovation, which was carried out by 1100 Architect, also improves the natural ventilation, adds energy efficient lighting, sustainable materials, and makes the building a vibrant and fun place to discuss the art of lost languages.



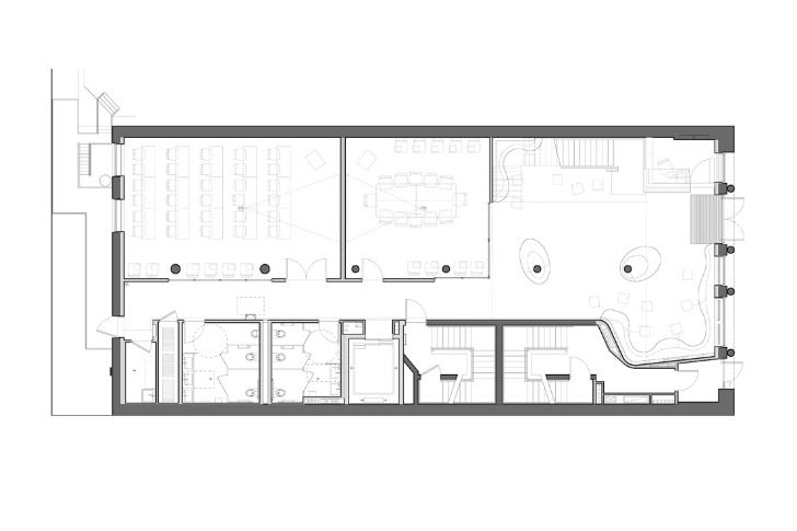
NYU’s Department of Linguistics is located in an early 19th century 6-story manufacturing building characterized by exposed brick walls and iron columns. Without diminishing these original qualities, the department wanted to improve interaction between the students and faculty, provide more spaces for people to gather, and brighten the space with both light and color. 1100 Architect’s renovation retained and restored many of the original characteristics, and also infused the space with modern elements like glass and metal.
Private student and faculty offices were shifted to the north and south ends of the upper floors, which have better lighting and are quieter. Teaching labs are located along the adjacent walls and common spaces are located in the center of the floors to create a collaborative environment. The ground floor enjoys a large open space for public functions with views out through the picture windows on to the street. Sliding glass walls create flexible environments to accommodate different sized groups and prominent staircases encourage people to walk rather than use the elevator.
As for sustainability, daylighting enters through large windows and is bounced into the inner spaces, while a large skylight pulls more light down into the center of the top floor. Energy efficient lighting, occupancy sensors, high performance insulation and low e coatings on the windows all help to reduce energy usage. Natural ventilation is combined with an energy efficient HVAC system and recycled materials were used where possible to reduce the building’s impact.





















本帖子中包含更多资源

您需要 登录 才可以下载或查看,没有账号?立即注册

×
.....提示:网站下载资源都有备份,如遇到下载地址失效请及时联系管理员(QQ:3459039404)恢复下载地址(个别无法恢复会退币)
您需要登录后才可以回帖 登录 | 立即注册

本版积分规则

室内设计工具箱

QQ|手机版|Archiver|室内人 ( 辽ICP备05022379号 )

GMT+8, 2026-3-22 21:54

Powered by Discuz! X3.5关于室内人 | QQ:3459039404(客服) | Email:snren_com@163.com

© 2001-2026 Discuz! Team.

快速回复 返回顶部 返回列表