找回密码
 立即注册

QQ登录

只需一步,快速开始


vray材质库
查看: 4042|回复: 0

[其他] 法国艾克斯的停车场服务亭

[复制链接]

该用户从未签到

2348

主题

1085

回帖

8万

积分

版主

积分
81220
发表于 2011-10-5 09:13:00 | 显示全部楼层 |阅读模式
jean-luc fugier: parking attendant's pavilion

'parking attendant's pavilion' by jean-luc fugier, aix en provence, france
image ? philippe piron

french based architect jean-luc fugier has sent us images of 'local gardien du parc relais des pinchinats', a parking
attendent's pavilion for the city of aix en provence, france. the increased prevalence of outer fringe deposits at public
transport locations required a prototype solution to streamline the payment process for speed and efficiency and
temporary housing for the employee on duty. the form's rectilinear footprint is gently twisted as it rises vertically,
rotating to guide visitors towards the kiosk. the structure controls the entry and exit point while providing surveillance
of the park during the day.


southwest corner and south elevation
image ? philippe piron

strips of lumber are wrapped horizontally around the perimeter securing ground level windows and regulating
thermal gain along the south facing elevations. planed larch planks are spaced at even intervals and aligned
from surface to surface. components are joined at the inclined corners or concealed with edging at the payment
entrance. above the ticket machines, a wooden canopy extends to protect customers with integrated lighting
at night.


entrance
image ? philippe piron


entrance detail
image ? philippe piron


south elevation


(left) southwest corner
(right) southeast corner
images ? philippe piron



corner detail
image ? philippe piron


facade detail
image ? philippe piron


lights are concealed within the canopy
image ? philippe piron


illuminated at night
image ? philippe piron


secure surveillance window
image ? philippe piron


interior
image ? philippe piron


construction of wooden framework
image ? philippe piron


lumber framing
image ? philippe piron


building corner before assembly
image ? philippe piron


installation of prefabricated frame
image ? philippe piron


installation of canopy
image ? philippe piron


site plan
image courtesy jean-lug fugier


floor plan / level 0
image courtesy jean-lug fugier


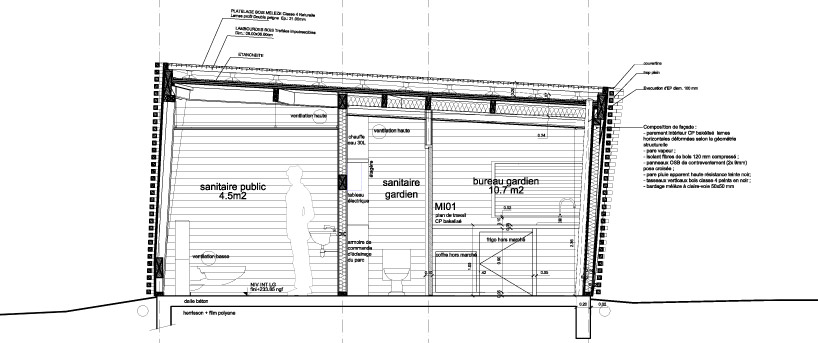
section
image courtesy jean-lug fugier

project info:

client: community of the pays d'aix - travel service -
project manager: jean-luc fugier architect agent architecture associated fest.
site: parking bridge road sisteron, north east entrance to town, aix en pce.
programme: a lodge keeper equipped office space for surveillance, including sanitary and kitchen. a reception area
with a public health pmr, bringing together the functions of information point and cash payment.
mission type: full limited to building
cost: 62 500 euros ht
building area: 30 m2
study duration: 9 months
construction period: 3 months (including three weeks on site)
delivery: december 2010
lot 1 clot / cover: scoop triangle
lot 2 second action: b. franzella

本帖子中包含更多资源

您需要 登录 才可以下载或查看,没有账号?立即注册

×
.....提示:网站下载资源都有备份,如遇到下载地址失效请及时联系管理员(QQ:3459039404)恢复下载地址(个别无法恢复会退币)
您需要登录后才可以回帖 登录 | 立即注册

本版积分规则

室内设计工具箱

QQ|手机版|Archiver|室内人 ( 辽ICP备05022379号 )

GMT+8, 2026-3-22 18:54

Powered by Discuz! X3.5关于室内人 | QQ:3459039404(客服) | Email:snren_com@163.com

© 2001-2026 Discuz! Team.

快速回复 返回顶部 返回列表