|
24678| 4
|
[作品方案] 2022版 户型优化 方案素材 19G (涵盖CAD文件+PSD文件) |

|
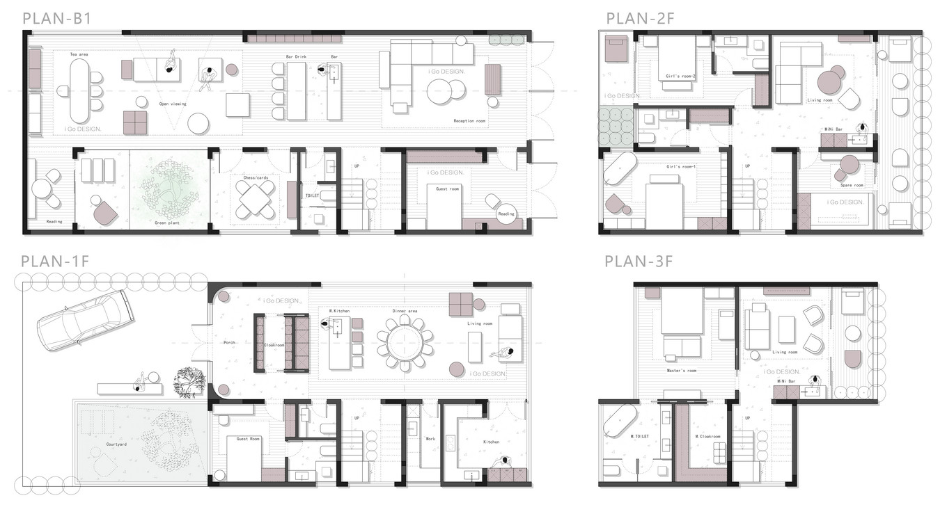
---------------160㎡户型 细节优化三居室--------------- [attach]422073[/attach] ---------------230㎡户型 仪式感大平层--------------- [attach]422074[/attach] ---------------265㎡户型 两套打通方案--------------- [attach]422075[/attach] ---------------393㎡户型 大平层方案--------------- [attach]422076[/attach] ---------------536㎡户型 顶级豪宅大平层--------------- [attach]422077[/attach] ---------------600㎡户型 自建房户型--------------- [attach]422078[/attach] ---------------91㎡户型 爆改刚需三居方案--------------- [attach]422079[/attach] 一种户型 多种方案 全部带CAD文件及PSD彩图 [attach]422080[/attach] [attach]422081[/attach] [attach]422082[/attach] [attach]422083[/attach] [attach]422084[/attach] [attach]422085[/attach] [attach]422086[/attach] [attach]422087[/attach] [attach]422088[/attach] [attach]422089[/attach] [attach]422090[/attach] [attach]422091[/attach] [attach]422092[/attach] 2022版 户型优化 方案素材 下载地址:
购买主题
本主题需向作者支付 235 坛币 才能浏览
| |
|
.....提示:网站下载资源都有备份,如遇到下载地址失效请及时联系管理员(QQ:3459039404)恢复下载地址(个别无法恢复会退币) |
|
| ||
|手机版|Archiver|室内人
( 辽ICP备05022379号 )
GMT+8, 2025-12-14 07:00
Powered by Discuz! X3.5


关于室内人 | QQ:3459039404(客服) | Email:snren_com@163.com
© 2001-2025 Discuz! Team.