找回密码
 立即注册

QQ登录

只需一步,快速开始


vray材质库
查看: 22911|回复: 0

[商业] 世茂璀璨倾城售楼处 “波光粼粼”|INHOUSE设计

[复制链接]

该用户从未签到

85

主题

32

回帖

3490

积分

高级会员

积分
3490
QQ
发表于 2020-7-2 14:59:17 | 显示全部楼层 |阅读模式
项目信息

项目名称:世茂·璀璨倾城售楼处
项目地点:山东·青岛
设计面积:628㎡
建成年份:2020年
项目类型:售楼处
设计风格:现代风格
设计负责:杜善刚
主案设计:封凯慧、乔静、刘婉琳、任伟
发布日期:2020-06-30



工程档案

开发单位:青岛海智伟创置业有限公司
室内设计:香港IN HOUSE装饰设计有限公司
软装设计:香港IN HOUSE装饰设计有限公司
软装陈设:香港IN HOUSE装饰设计有限公司
用地面积:项目总用地面积为66000㎡
项目规模(总建筑面积):总建筑面积172600㎡
容积率:2.0
绿化率:30%



设计理念

百年青岛,千年即墨。悠久的历史,璀璨的文化,神奇的胶东大地,沉淀的文化,古迹的幽香,给人留下了参悟难透的念想和古今情致的沉思。

千年商都文化气质的形成,离不开传承和创新的脚步,犹如一座城市发展的历史长河,总有一批批时代的弄潮儿,呕心沥血,披荆斩棘,璀璨裂变。将古城重塑为坚硬璀璨的砖石,光彩熠熠,波光粼粼 ......



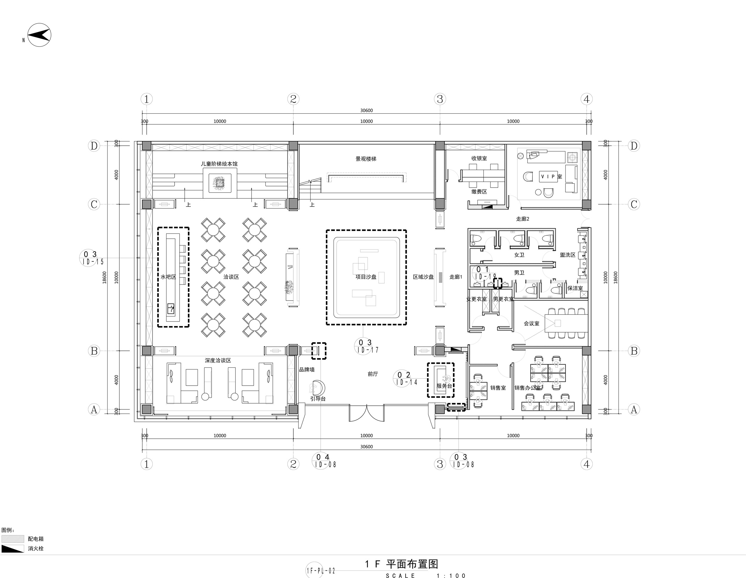
平面图



实景照片


整个售楼处围绕“当代艺术,精致,简洁”进行设计的,整个空间营造简练、通透、淡雅的设计氛围。所谓设计,就是通过创造与交流来认识我们生活在其中的世界。创造力的获得,并不是一定要站在时代的前端。当我们转身,一样会看见悠久的历史为我们积累了雄厚的文化资源。

设计让理性与文化生活相融合,展现出多元化的的现代创新,更带有让人向往的生活仪式感。


前厅,大理石石材的自然纹理与光线交织,由地面向顶层延伸,将仪式感与光影渲染而出,结构美与立面感自成章法,沉稳静谧。在空间序列设计中,屏风规律整齐的排布,对称均衡、静穆庄重,视觉引导延伸了空间,成就高度的秩序与仪式感,散发沉静有力的空间语言。


步入大堂,开阔明亮的沙盘区和波光粼粼的水景幕墙。犹如水波波纹吊灯,为两侧对称的空间添加了一份别致的设计感,搭配顶面水波纹不锈钢,一虚一实,与窗外翠绿,宛如天然的画卷,艺术有时候是一种抽象的精神姿态,是一种主观的感受。


楼梯处水幕从二楼倾泻而下,流光溢彩,与水下飞鸟雕塑相互呼应,犹如一只海鸟飞翔在浩瀚的海洋;用现代的手法表达水天一色的景象,照进人内心深处对于惬意生活的向往,为当代生活带来新意。

艺术品并不是安静的呆在那里,而是会引领我们去感受生活的氛围。空间本是无垠无形,作为一个设计者,也许永远只能捕捉,无法下定义,因为就像野渡里的舟子,就算无人存在,也能物我相忘自在横卧,天地两悠悠。


洽谈区采用框景的设计手法,沙发临窗而设,以秩序感排布,遵循对称的美感,将洽谈区完美的框入画面。光影之间回响着静谧,含蓄的凝聚力在室内承启,别具内涵。

色彩点缀孔雀蓝、爱马仕橙、白相间的搭配,表达静旎平和的空间语境,描摹出人与自然和谐、纯粹的共生之美。当人们落座于洽谈区交谈,倍感轻松惬意。

树枝造型的吊灯,象征即墨古树,生命力极强,历经几百年依然枝叶繁茂,焕发出勃勃生机。与众不同的设计凝聚着创意,与艺术轮廓往往带来立体而大气集聚的视觉焦点,时尚美观且优雅。


水吧区与洽谈区相邻,展示柜内摆放了风格简约大气,典雅不乏时尚,细节精致的艺术摆件。整体线条流畅简明、干脆利落,刻画的惟妙惟肖。花艺选用富有生机的绿色,自然美观。


深度洽谈区选用高级灰色的布艺沙发,强调空间感和舒适感,洗练的造型,简洁的结构,在简单中追求丰富。

傍晚窗外的暗蓝天空,与室内的灯光呼应,形成一道很美的景色,巨大的落地窗成为最好的连接,一明一暗,就连展示柜里的艺术品都显得黯然失色。


VIP室更像是一个艺术的天地,无论是墙上的艺术装置,还是展示柜中的艺术品,包括造型奇特的黄色单人沙发,以及富有艺术感的圆形吊灯,都能体现出艺术带给这个空间的独特魅力。


儿童活动区与通透开场的洽谈区遥遥相望,又互不打扰,做到了孩子与家长最相宜的安全距离。

儿童区阶梯书吧、星空顶、树池的设计,源于孩子对自然气息的憧憬和智慧的渴望。就算在这里待上一天,小孩子也不会觉得烦闷。



本帖子中包含更多资源

您需要 登录 才可以下载或查看,没有账号?立即注册

×
.....提示:网站下载资源都有备份,如遇到下载地址失效请及时联系管理员(QQ:3459039404)恢复下载地址(个别无法恢复会退币)
回复

使用道具 举报

您需要登录后才可以回帖 登录 | 立即注册

本版积分规则

室内设计工具箱

QQ|手机版|Archiver|室内人 ( 辽ICP备05022379号 )

GMT+8, 2025-12-18 04:50

Powered by Discuz! X3.5关于室内人 | QQ:3459039404(客服) | Email:snren_com@163.com

© 2001-2025 Discuz! Team.

快速回复 返回顶部 返回列表