找回密码
 立即注册

QQ登录

只需一步,快速开始


vray材质库
查看: 27321|回复: 2

[IN HOUSE] 世茂公园美地公寓样板房“初恋少女”| INHOUSE设计

[复制链接]

该用户从未签到

85

主题

32

回帖

3490

积分

高级会员

积分
3490
QQ
发表于 2020-5-21 13:54:40 | 显示全部楼层 |阅读模式
项目信息

项目名称:世茂·公园美地公寓样板房
项目地点:山东·青岛
设计面积:31.15㎡
建成年份:2020年
项目类型:样板房
设计风格:现代风格
设计负责:杜善刚
主案设计:封凯慧、赵鑫、郑荣、刘婉琳、王丽瑶
发布日期:2020-05-21

工程档案

开发单位:青岛世茂新城房地产开发有限公司
室内设计:香港IN HOUSE装饰设计有限公司
软装设计:香港IN HOUSE装饰设计有限公司
软装陈设:香港IN HOUSE装饰设计有限公司
用地面积:项目总用地面积为1000000㎡
项目规模(总建筑面积):总建筑面积1700000㎡
容积率:1.50
绿化率:31.50%


设计理念

以柔媚的蔷薇粉色为主,蔷薇粉有人称之为粉晶,有着蔷薇花般的粉嫩轻盈,也有着晶石般的剔透坚定,蔷薇花般温柔,水晶石般坚定,是一种温柔而坚定的颜色。
时尚精致曲线造型的家具凸显出女性的特点,生机盎然的绿植花艺,面料、饰品来营造出充满灵感的丰富却不凌乱的空间氛围。这样的空间是浪漫的,是充满激情,充满活力的。

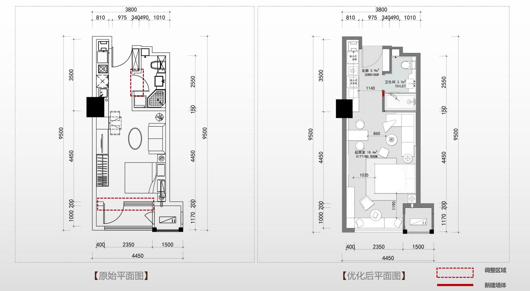
平面图



实景照片





少女一般的肤色,淡淡的蔷薇粉仿若初恋般娇羞的容颜,正因为颜色很是素雅,所以它被全世界的贵族名流而推崇,是永远的经典,是优雅纯洁的象征。
打造一个甜美大气的空间,粉色蔷薇绝对是最佳选择,你可以毫不避讳对它的运用,让家里变成一片粉色的海洋。沙发、抱枕甚至是墙面都精心选择和设计线条的蜿蜒,别致而优雅。





进门之后,通道两侧分别是梳妆台和洗手台。梳妆台内可以放置饰品和化妆品,空间虽小,却非常精致实用。洗手台也可以叫小厨房,可以制作各种美食,开阔的视野,宽敞的空间,舒适自在的在此享受烹饪带来的满足感。











如何平衡粉色在视觉上的“甜”,不妨加入优雅知性的灰蓝色,这一点在客厅体现的淋漓尽致。既能凸显主人的不凡品位,又能打破粉色带来的过度饱和。就让蓝色的深度优雅与粉色来一场完美的邂逅。
每个少女时代,像花季里弥漫出春的香气。每个初恋的少女,心里都开满了花。茶几上极具创意的可爱摆件,脑袋里装的全是对世界的美好憧憬。那段花样的年华,酸酸甜甜的小心事,值得我们再次细细回味。





餐桌选用大理石材质,防锈耐刮耐高温桌面平整易清洁,质地坚硬更耐用,大气且美观。
餐椅选用柔软绒毛材质,坐垫手感圆润,粉色展示亮丽,创意造型设计,美观且柔软舒适。搭配金属材质的底部架构,烤漆工艺颜色亮丽,非常耐看。
一侧的置物架上放着些许摆件和几本书籍,在餐厅空间显得非常有设计感,不仅节省空间,而且让餐厅显得不那么单调。













粉色蔷薇向来是少女偏爱的颜色,要想为家增添一抹精致的浪漫,床品绝对少不了粉色元素的注入。不落俗套的高调搭配,既满足了少女的对清新的执着追求,又能开启精致的公主生活。
床头柜一侧摆放了少女摆件,可爱的造型,桀骜不驯的身姿,仿佛在迎接美好的未来,不屈服的样子真的是趣味不凡,充满朝气。另一侧摆放的一个身穿芭蕾舞服装的女孩造型摆件,似乎每个女孩都有一个舞蹈梦,跳舞是每个女孩子小时候都非常喜欢做的事情。
靠近窗户的小桌子设计的很巧妙,磨一杯咖啡,读一本书,一个人享受独处的悠闲自得。自己的小空间,既温馨又舒适,就算工作一天再累,回到这样的家中也能瞬间心情变得愉悦起来。

本帖子中包含更多资源

您需要 登录 才可以下载或查看,没有账号?立即注册

×
.....提示:网站下载资源都有备份,如遇到下载地址失效请及时联系管理员(QQ:3459039404)恢复下载地址(个别无法恢复会退币)
回复

使用道具 举报

该用户从未签到

169

主题

2993

回帖

2万

积分

论坛元老

积分
28497

朱雀徽章青龙徽章白虎徽章五星战将玄武徽章

发表于 2020-5-25 08:15:24 | 显示全部楼层
用色好舒服服~!
回复 支持 反对

使用道具 举报

该用户从未签到

85

主题

32

回帖

3490

积分

高级会员

积分
3490
QQ
 楼主| 发表于 2020-5-25 14:27:05 | 显示全部楼层
回复 支持 反对

使用道具 举报

您需要登录后才可以回帖 登录 | 立即注册

本版积分规则

室内设计工具箱

QQ|手机版|Archiver|室内人 ( 辽ICP备05022379号 )

GMT+8, 2025-12-26 08:28

Powered by Discuz! X3.5关于室内人 | QQ:3459039404(客服) | Email:snren_com@163.com

© 2001-2025 Discuz! Team.

快速回复 返回顶部 返回列表