找回密码
 立即注册

QQ登录

只需一步,快速开始


vray材质库
查看: 6018|回复: 1

[餐饮] Hemso餐厅设计

[复制链接]

该用户从未签到

952

主题

1159

回帖

3万

积分

论坛元老

积分
36912
发表于 2019-8-21 11:15:23 | 显示全部楼层 |阅读模式
架构师::斯维克建筑师
地点::870年10 Hemso,瑞典
架构师负责::Sverker Cajmatz
面积:400.0平方米
照片::蒂姆·迈耶

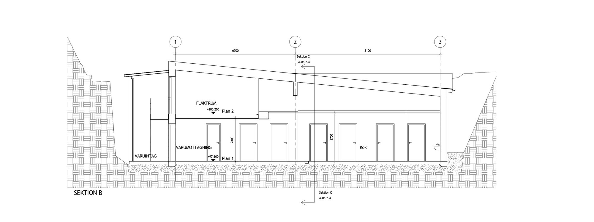
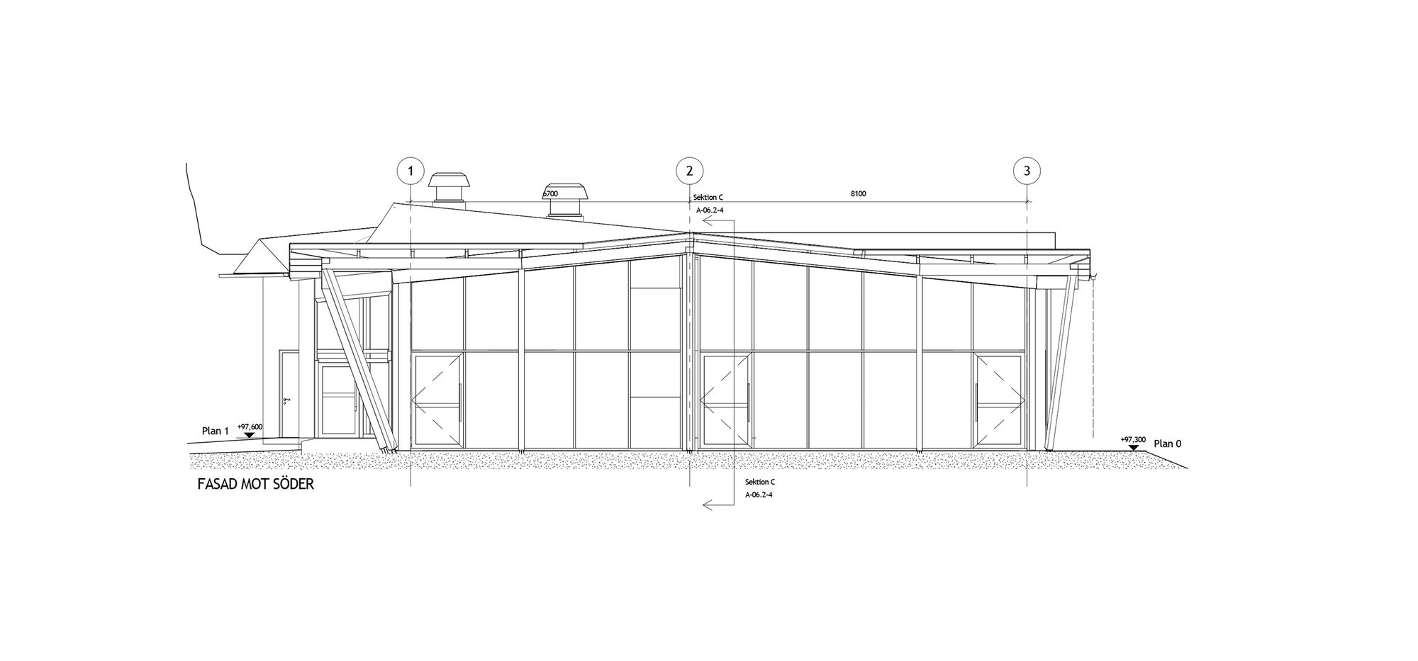
堡垒Hemso是瑞典最大的军事基地之一的冷战。 地下要塞建于完全。 岛上Hemso位于联合国教科文组织世界遗产旁边高墨西哥湾海岸的西面。 引人注目的景观和堡垒已经被政府机构为游客开放,史坦顿。 作为发展做出建筑师的一部分委托设计一个新餐馆。

“精制工棚”作为座右铭在设计工作流程和工作方式的挑战设计一个欢迎的餐厅,还有一个连接的历史。 除了这是冷战的精简风格和现代飞机的隐身设计的灵感来源。 倾斜的倾斜屋顶和盒子试图躲在地形点头向这些引用。 大玻璃表面会欢迎和邀请游客方法广泛的餐厅开放视图在海湾的西面。

这家餐厅坐落在一个山坡上森林稀疏。 山路狭窄导致它和最近的邻近的建筑是非常远。 自建筑应该是接近大自然,木材是一种天然的选择在瑞典现代和传统材料。

外观和胶合的云杉的支承结构。 餐厅的室内墙面上木板云杉和餐厅的后墙,一些内部障碍的OSB覆盖着。 Traullit的天花板和良好的吸附剂(盘子从云杉木材制造的羊毛和水泥)。 地板上有瓷砖和镶花地板(灰)。 建筑的后部,包括存储和厨房,悬崖和混凝土是由元素之间的休息。















本帖子中包含更多资源

您需要 登录 才可以下载或查看,没有账号?立即注册

×
.....提示:网站下载资源都有备份,如遇到下载地址失效请及时联系管理员(QQ:3459039404)恢复下载地址(个别无法恢复会退币)
回复

使用道具 举报

该用户从未签到

952

主题

1159

回帖

3万

积分

论坛元老

积分
36912
 楼主| 发表于 2019-8-21 11:16:10 | 显示全部楼层




































本帖子中包含更多资源

您需要 登录 才可以下载或查看,没有账号?立即注册

×
回复 支持 反对

使用道具 举报

您需要登录后才可以回帖 登录 | 立即注册

本版积分规则

室内设计工具箱

QQ|手机版|Archiver|室内人 ( 辽ICP备05022379号 )

GMT+8, 2025-12-18 06:02

Powered by Discuz! X3.5关于室内人 | QQ:3459039404(客服) | Email:snren_com@163.com

© 2001-2025 Discuz! Team.

快速回复 返回顶部 返回列表