找回密码
 立即注册

QQ登录

只需一步,快速开始


vray材质库
查看: 6576|回复: 0

[餐饮] 北欧时光烘焙店丨湖北YOUNG设计

[复制链接]

该用户从未签到

1222

主题

430

回帖

5万

积分

论坛元老

积分
53148
发表于 2019-7-16 16:29:09 | 显示全部楼层 |阅读模式
【案例名称 】北欧时光烘焙店
【项目地址 】湖北省 荆州市
【项目面积】 170 平方米
【设计公司】1916设计工作室
【主创设计 】王伟
【设计主材】 木材、瓷砖、铁板、绿植等
【设计时间】 018.02
【建成时间】 2018.05
【如是生活 本是烘培If it is life, this is baking.



▲ 建筑外观 Building exterior 北欧时光烘焙店位于荆州古城区主干道江津中路繁华地段,商住小区临街处,面积150平方米,分上下两层空间。店名来源于北欧,北欧的美丽风景太难企及,唯有在这遥远的一隅,为自己筑一方北欧空间。在这里,您享受的不仅是一段美好的下午茶时光,更是一种极简舒适的生活方式。



▲ 外观细节Appearance details 整体以简洁明了的设计手法,用白色作为基调,明亮、整洁、纯净。店面与周边喧嚣浮躁的环境剥离,大部分的留白像一张动态画布,记录来来往往的人物和光影。



▲ 入口视角Entrance perspective 柔和温暖的性情在洁净的白色基底里展露无遗。入口处玻璃大门明亮通透,同时在白色调中融入木质元素,使设计更加舒适自然。



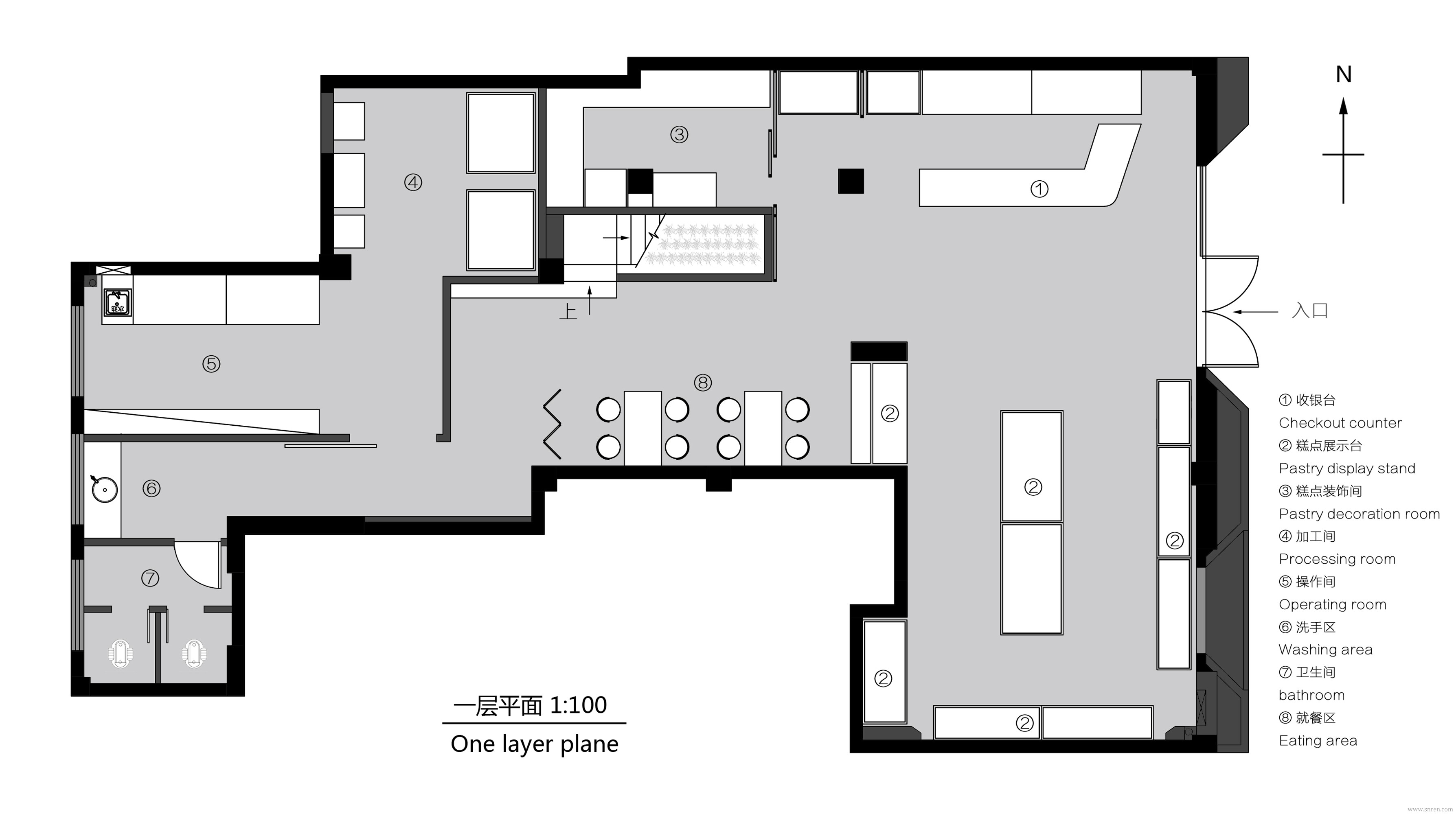
▲ 收银台区域



▲ 糕点展示台区域Pastry display area 整个空间简洁明快,摒弃繁琐的结构,追求空间的质量和材料的质感体现,力求功能最大化。白色的吊顶,灰色的地砖确定了空间的基调,再加上有质感的黑色铁艺材料,木质底座与透亮的浅灰色地砖和玻璃形成鲜明对比,创造出温馨又不失时尚的极简空间。



▲ 室内Indoor



▲ 吧台俯视Bar overlook 地板采用各种不同的拼接,形成视觉上的几何美感。另外从吧台区域整体看来,拼接的瓷砖像面包汁和果汁从吧台流出溅落开来散落在每个角落,这也是一楼大厅的功能分区及消费动线引导。





▲ 楼梯Stairs 除了强调室内空间宽敞、内外通透、最大限度引入自然光之外,追求自然,讲究原木质感,是北欧风格的灵魂。因此在木材的选择上,保留了原始的色彩和质感。同时,悬空的楼梯让空间更通透且富有趣味性。





▲ 楼梯下细节Stair detail

细节彰显温度和生命。其中点缀着浅绿色家具,让空间鲜活起来。与此同时,楼梯间大片的麦穗与原木色楼梯的搭配,整体与自然完美的融合,再加上绿色植物也为空间赋予了生命,散尾葵等在麦香四溢的空间里滋养生长,让极简的空间重新焕发了绿色的生机。设计师的灵感来源会有很多,但只有源于自然的设计,才是真正有温度的设计。



▲ 楼梯俯视图Staircase top view 整体空间的风格基于LOFT之上,大量运用原木和钢网来构造空间,总体基调以和白色乳胶漆作为墙面背景衬托原木的质感。



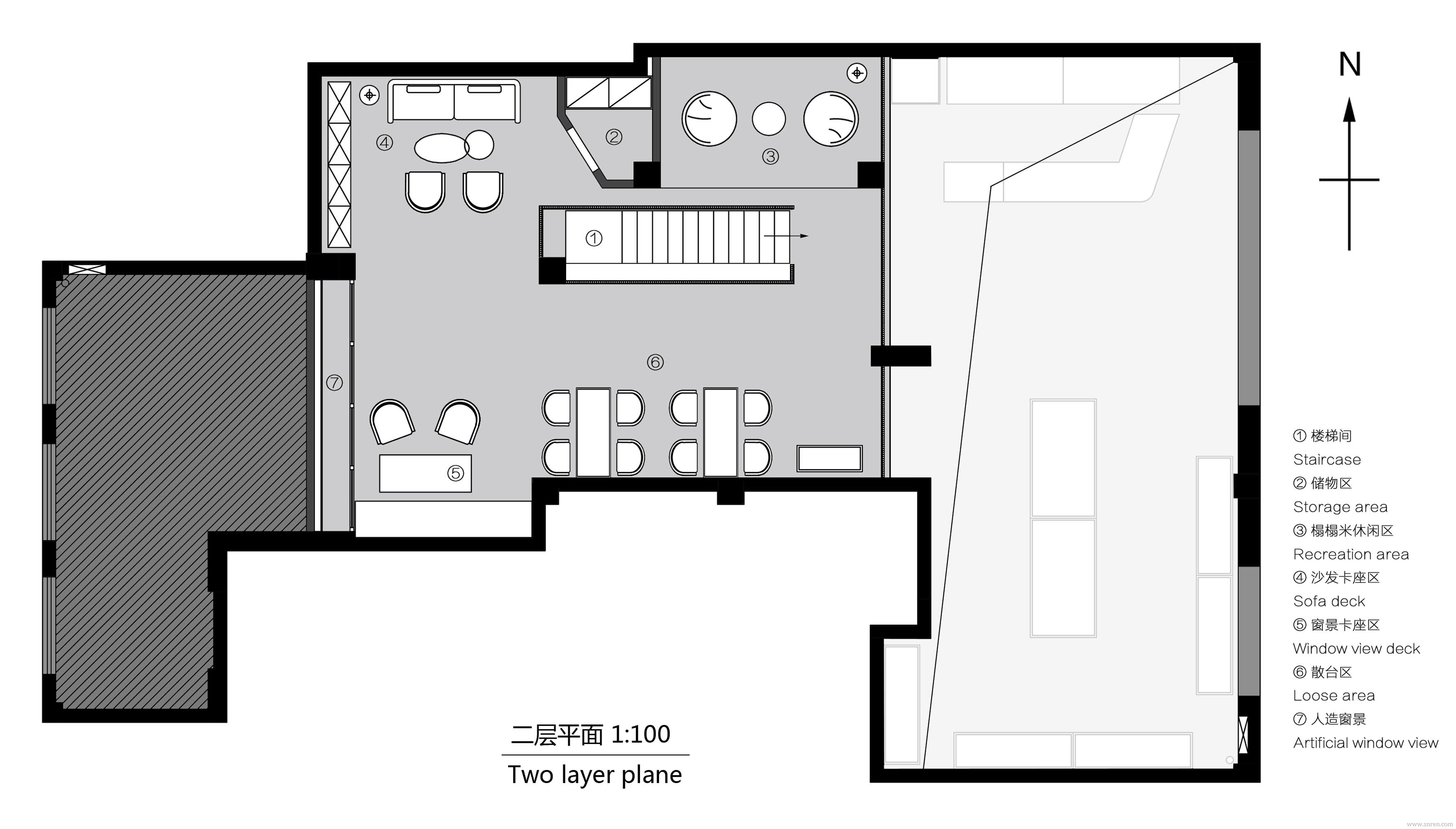
▲ 休闲区Recreation area 二层作为休息就餐区,简单个性的蓝色、灰色棉质沙发慵懒闲适。同时沙发窗边的人造麦田风景,为内部空间增添一丝静谧,也更贴近自然,让顾客能在此处尽享安逸和放空。





▲ 休闲区Recreation area 空间配饰大量运用自然元素和烘焙软饰,钢结构和木结构的搭接配合,不仅勾勒出各个空间的形态,也创造出餐厅独有的人流动线。同时钢网在空间中起到了一定的阻挡和分割空间的作用。



我们通过一系列的设计营造,旨在创造出一隅安静的氛围。让进入其间的人节奏缓下来,在这里喝杯咖啡,点上一份甜点,享受难得的慢时光。



▲ 一楼平面图First floor plan



▲ 二楼平面图Second floor plan

本帖子中包含更多资源

您需要 登录 才可以下载或查看,没有账号?立即注册

×
.....提示:网站下载资源都有备份,如遇到下载地址失效请及时联系管理员(QQ:3459039404)恢复下载地址(个别无法恢复会退币)
回复

使用道具 举报

您需要登录后才可以回帖 登录 | 立即注册

本版积分规则

室内设计工具箱

QQ|手机版|Archiver|室内人 ( 辽ICP备05022379号 )

GMT+8, 2026-3-22 12:25

Powered by Discuz! X3.5关于室内人 | QQ:3459039404(客服) | Email:snren_com@163.com

© 2001-2026 Discuz! Team.

快速回复 返回顶部 返回列表