找回密码
 立即注册

QQ登录

只需一步,快速开始


vray材质库
查看: 7059|回复: 1

[餐饮] 鹅岛精酿啤酒吧 | 杰璐设计

[复制链接]

该用户从未签到

2348

主题

1085

回帖

8万

积分

版主

积分
81220
发表于 2019-5-17 10:07:42 | 显示全部楼层 |阅读模式
项目名称: 鹅岛精酿啤酒吧
地点:中国上海市静安区茂名北路209号B区2座 丰盛里Area
面积: 1,200sq.m.Project Year
项目年: 2017
设计公司名称/施工单位: ASIG Design杰璐设计工作室
设计师:安杰
       杰璐设计工作室携手全球消费品巨头,全球领先的酿酒制造商百威英博,设计并实施了该公司旗下在中国的第一家鹅岛精酿酒吧。酒吧座落在上海市区中心一个备受期待的全新商业人气聚集地—丰盛里。具备浓厚芝加哥底蕴的鹅岛精酿啤酒在全球推广的同时,选址于以经典石库门风格建筑作为特色的丰盛里,其本源意在向中国本土文化致敬。

▼室内空间概览



映衬在原汁原味芝加哥风格的红白二色窑砖背景下,精致的高光不锈钢酿酒容器与芝加哥地铁里黑白色面包砖,还有来自美国的再生地板产生强烈的对比,酒吧的室内空间效果得以完美展现。

▼一层地道芝加哥酒吧



▼座椅细部



通过对二楼地面结构切割改造,空间高度得以延伸,并同时使得在混凝土斜屋顶之下的巨型吊扇令人难以忘怀。

▼二层私密就餐区





▼座椅细部&包厢





▼混凝土斜屋顶下的高光不锈钢酿酒容器



▼酿酒容



无论是在可以体验经典地道芝加哥酒吧感觉的一楼,还是感受相对私密就餐区的二楼,底部镀膜反射灯泡轻柔的光线,都带给防火木饰面吸音板天花一丝暖意。

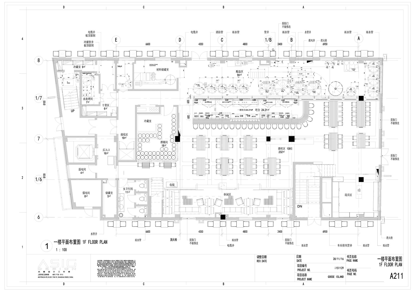
▼一层平面图



▼二层平面图

本帖子中包含更多资源

您需要 登录 才可以下载或查看,没有账号?立即注册

×
.....提示:网站下载资源都有备份,如遇到下载地址失效请及时联系管理员(QQ:3459039404)恢复下载地址(个别无法恢复会退币)
回复

使用道具 举报

该用户从未签到

169

主题

2993

回帖

2万

积分

论坛元老

积分
28497

朱雀徽章青龙徽章白虎徽章五星战将玄武徽章

发表于 2019-6-14 09:28:54 | 显示全部楼层
夏天去了就不出来了~!
回复 支持 反对

使用道具 举报

您需要登录后才可以回帖 登录 | 立即注册

本版积分规则

室内设计工具箱

QQ|手机版|Archiver|室内人 ( 辽ICP备05022379号 )

GMT+8, 2026-3-22 15:40

Powered by Discuz! X3.5关于室内人 | QQ:3459039404(客服) | Email:snren_com@163.com

© 2001-2026 Discuz! Team.

快速回复 返回顶部 返回列表