找回密码
 立即注册

QQ登录

只需一步,快速开始


vray材质库
查看: 6346|回复: 0

[商业] 杭州LE CYGNE天鹅童话肌肤形体管理中心 | 耀设计

[复制链接]

该用户从未签到

29

主题

0

回帖

633

积分

中级会员

积分
633
发表于 2019-4-25 15:55:50 | 显示全部楼层 |阅读模式

项目名称:LE CYGNE天鹅童话肌肤形体管理中心
设计方:YAO DESIGN 耀设计
项目设计 & 完成年份:2019年1月
主创设计师:朱寿耀
设计团队:陈烽&陈晔
软装团队:梁玲娜&陈烽
项目地址:杭州省江干区平安金融中心2楼
建筑面积:280平方米
摄影版权:李迪
合作方:迈光照明(灯光顾问)、朗思新材(定制材料)、中策标识(vi定制)
主材:水磨石、定制U型玻璃、定制涂料、不锈钢、彩色玻璃

LE CYGNE在法语中意为“天鹅”,以童话般的故事,寄希望每个女孩都像天鹅一样美得优雅从容。


▼项目概览


设计结合品牌定位,打造「时尚,精致,专业」的品牌空间体验。通过光与空间进行“光合作用”,营造LE CYGNE奢美曼妙的空间意境,进入真我世界,唤醒源源不绝的活力和女性魅力。


▼入口前厅


▼墙面细部


入口通过创造景深将视觉导入到空间,入口产品展示大厅,大面积白色与弧形门洞相叠加,穿梭进入旋转光圈的弧形门洞,仿佛物质经过时间和空间的流转而产生内在变化,犹如置身于一条通往美与蜕变的“时光隧道”, 留给人无限的想象与神秘感。空间以近乎纯白色调扩容视觉,通过光影、材料、线条的相互关联,体现多样变化,同时将优雅和专业的双重属性赋予LE CYGNE。



▼接待台桌面视角


▼入口区域


▼带光圈的弧形门洞形成一条“时光隧道”


入口门洞的两侧,则为一对一的咨询区,通过流畅的线条将两个空间相连接,体现一种柔美的张力。如摇滚音乐与爵士乐碰撞出了火花,在喧闹的朋克之下,有着唯美之感。

▼从室内望向入口前厅


隧道尽头的幻彩玻璃,折射出曼妙的光影。随着光影进入纯净的大厅空间,白色的水磨石纯粹而极致。沙发背后的拱形书架,延续弧线的设计元素,倾斜的造型,打破空间平衡,体现摇滚精神。美容包间内则通过静谧的灯光设计,营造安静柔美的空间氛围,给予内心一份平静,一刻的冥想,去寻找最真实的自我!

▼休闲区的拱形书架




LE CYGNE 天鹅童话,你可以在这里探寻真我,总有一个理由,喜欢的音乐,喜欢的生活方式,一杯咖啡,一本书籍,一份快乐,一份自信与美丽……

▼空间分隔



▼休闲区浴缸



▼咨询区


▼轴测图






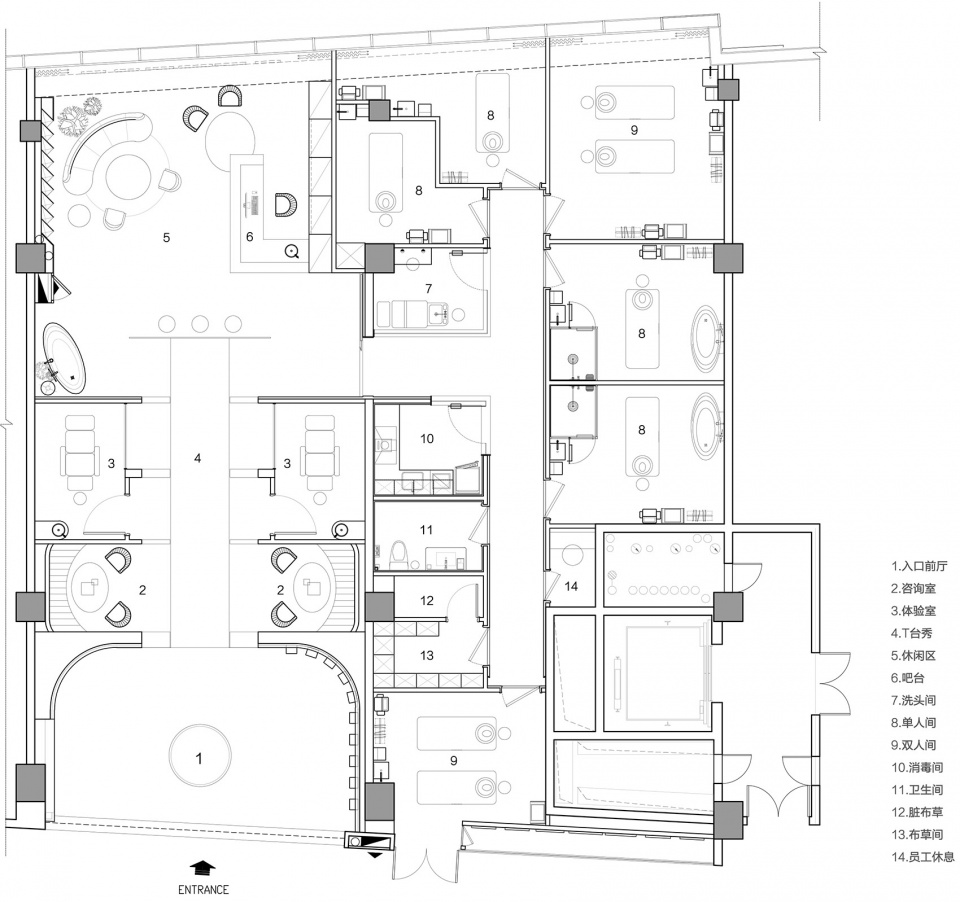
▼平面图



本帖子中包含更多资源

您需要 登录 才可以下载或查看,没有账号?立即注册

×
.....提示:网站下载资源都有备份,如遇到下载地址失效请及时联系管理员(QQ:3459039404)恢复下载地址(个别无法恢复会退币)
回复

使用道具 举报

您需要登录后才可以回帖 登录 | 立即注册

本版积分规则

室内设计工具箱

QQ|手机版|Archiver|室内人 ( 辽ICP备05022379号 )

GMT+8, 2026-3-22 13:56

Powered by Discuz! X3.5关于室内人 | QQ:3459039404(客服) | Email:snren_com@163.com

© 2001-2026 Discuz! Team.

快速回复 返回顶部 返回列表