找回密码
 立即注册

QQ登录

只需一步,快速开始


vray材质库
查看: 6092|回复: 1

[餐饮] 景上书院 | 宣驰装饰设计

[复制链接]

该用户从未签到

1283

主题

548

回帖

5万

积分

论坛元老

积分
56188
发表于 2019-4-12 09:33:17 | 显示全部楼层 |阅读模式
【项目名称】:景上书院
【项目地址】:浙江 杭州
【项目面积】:240㎡
【竣工时间】:2018.08
【主创团队】:凌炳斌、林素彦、许立强
【设计公司】:杭州宣驰装饰设计有限公司
【摄 影 师】:李恒
【设计主材】:青石板、艺术涂料、樟子纸、银丝木
缘起于茶,而不止于茶,由于人们情感的融入,便给予茶之于茶本身之外的语言形象。茶空间即是对茶室主人心境最直观的表达。茶如此,空间亦然。设计师细心品读甲方诉求,意会出“书不尽言、言不尽意”的空间表达意向。在空间氛围设计的表述上,设计师以意造境,观者即境会心,营造立象以尽意的空间感。

▼外立面



整个茶室以清新素雅为基调,空间规划为独立包厢区和散座区。在意境的塑造上,借鉴中国传统艺术中精工之极,又复古雅;简之又简,无简不繁;精而造景,简而意足的设计审美,在有限的空间里删繁去奢、以意造境,将现代气息结合东方禅意,通过观石、听雨、框景、造景的意象,演绎一个现代优雅的品茗空间。在此处,可以品一人茶;可以三五好友闲聚;也可以提供商务会议或洽谈;功能上可以满足不同客户需求,而目的只是为来访者提供一个轻松舒适的体验场所。

▼入口装饰细节



走过前厅拾阶而上踏入大堂区,前台与散座区对望,接待台人流走动与下沉式品茶区静坐的茶客动静分明。前台背景墙以茶器与杭州西湖水墨画相结合,茶画相宜、意象同生。起伏的屋顶取义于山上茶园,将大自然的曲线引入空间设计。墙面的留白是为了烘托展示架上的器皿与书籍,在此地询为自己一隅,静坐将茶试,闲书把叶翻。

▼前台&大堂区



▼墙面细部,茶叶、茶具陈列柜



东皋远火飞疏树,南浦归云拥渡舟。过道两侧分别有布置“归云庄”、“幽篁里”的两间包厢,均采用榻榻米的方式。

▼过道





归云庄充分利用自然采光,光影随着时间旋转,在陡立的太湖石上留下时间的印记。

▼归云庄



▼轻推移门,显露出嶙峋的置石



独坐幽篁里,弹琴复长啸。幽篁里包厢,设计师借用人造光的技术弥补自然光照不足,为小小的包厢采下一片光亮。框景的设计手法将画面定格,是东方精神气质的自然流露。一间茶室,一隅宁静,邀二三知己煮茶、解语,在这里,喝茶便拥有生活的一种仪式感。

▼视线穿过半掩的木门,如同穿过竹林,窥探幽篁里



▼幽篁里



▼细部



多功能厅作为茶室最大的包厢,内嵌式推拉门将空间一分为二,可开通可闭合。满足不同功能需求。茶器摆设便是构建整个空间美学最重要的组成部分。家具的布置,没有像传统家具那样正式,老榆木的茶桌茶椅透出一种返璞归真、清新自然的格调。茶客们在轻飘的茶香中开始自己的专属时间。

▼多功能厅



▼墙面装饰细部



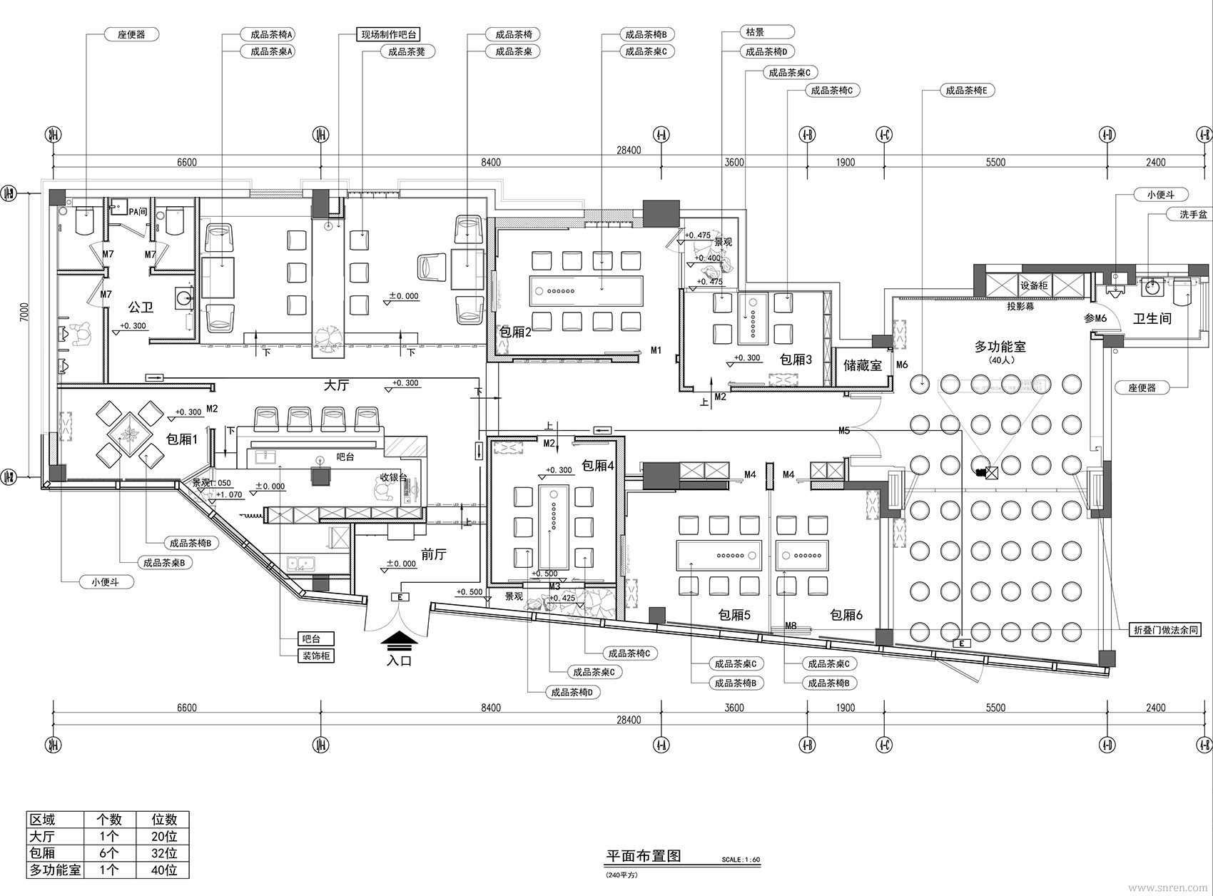
▼平面图



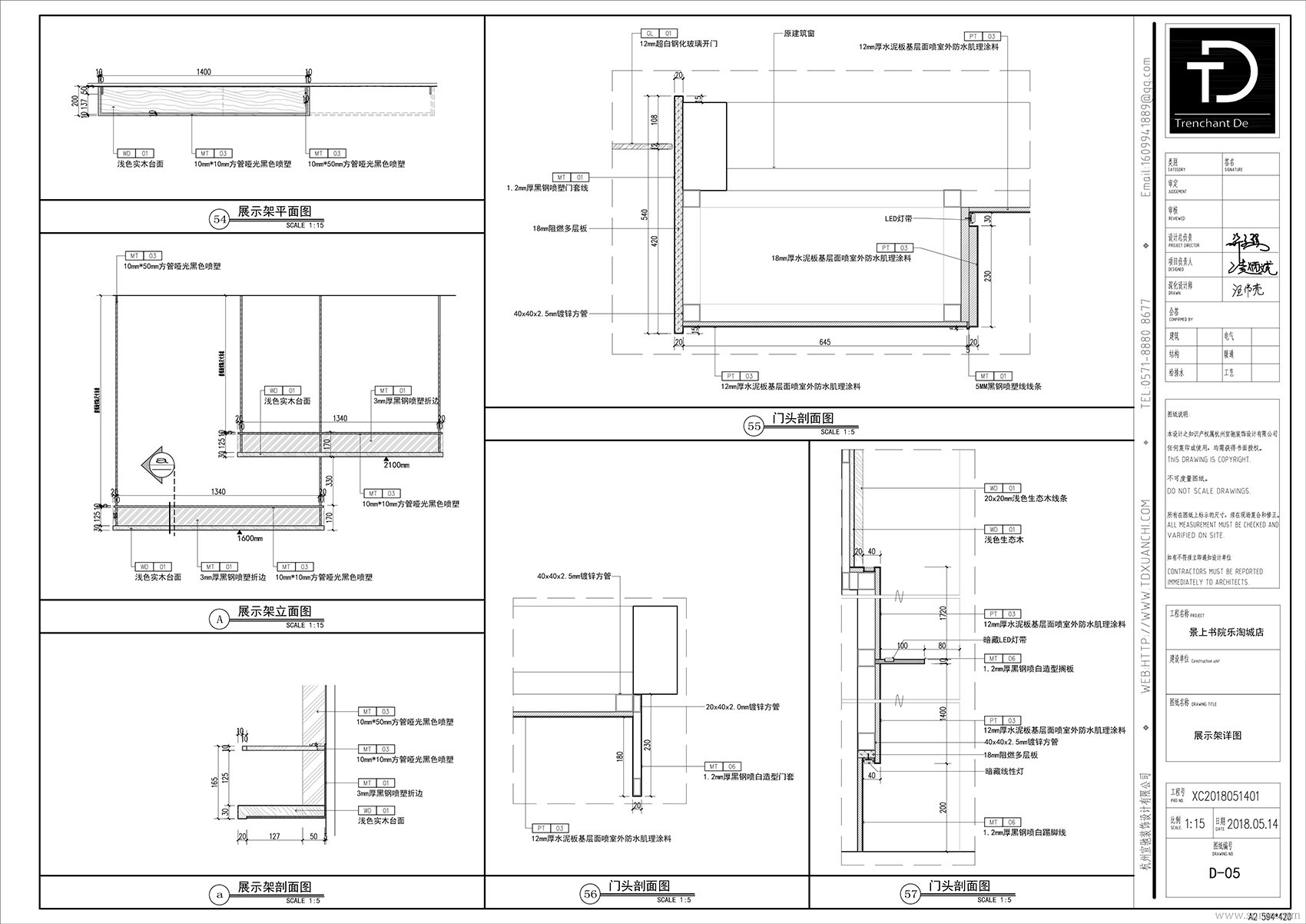
▼剖面图





本帖子中包含更多资源

您需要 登录 才可以下载或查看,没有账号?立即注册

×
.....提示:网站下载资源都有备份,如遇到下载地址失效请及时联系管理员(QQ:3459039404)恢复下载地址(个别无法恢复会退币)
回复

使用道具 举报

该用户从未签到

169

主题

2993

回帖

2万

积分

论坛元老

积分
28497

朱雀徽章青龙徽章白虎徽章五星战将玄武徽章

发表于 2019-4-13 08:32:14 | 显示全部楼层
日式风韵茶道~
回复 支持 反对

使用道具 举报

您需要登录后才可以回帖 登录 | 立即注册

本版积分规则

室内设计工具箱

QQ|手机版|Archiver|室内人 ( 辽ICP备05022379号 )

GMT+8, 2026-3-22 22:00

Powered by Discuz! X3.5关于室内人 | QQ:3459039404(客服) | Email:snren_com@163.com

© 2001-2026 Discuz! Team.

快速回复 返回顶部 返回列表