找回密码
 立即注册

QQ登录

只需一步,快速开始


vray材质库
查看: 8141|回复: 0

[办公] 《静界》物上空间设计

[复制链接]

该用户从未签到

2493

主题

2327

回帖

6万

积分

版主

积分
60979

青龙徽章白虎徽章朱雀徽章功勋奖章

发表于 2019-3-5 21:43:58 | 显示全部楼层 |阅读模式
项目地址】:福建泉州华大泰禾广场
【设计单位】:物上空间设计
【设计主创】:蔡天保、张建武
【设计团队】:许振良、李德娟、钟小苏
【设计时间】:2017.2.10-2017.6.10
【开放时间】:2018.3.20
【项目面积】:240㎡
【工程造价】:60万
【主要材料】:白色微晶石、白色乳胶漆、灰色大理石、实木地板、10mm钢化玻璃
【软装团队】:物色软装施工团队:广海工程
【空间摄影】:陈荣坤
一道光门,隔开了外界的纷扰,拾阶而上,映入眼帘的是一头金色的熊趴在玻璃上向内窥望,这是致敬艺术家Lawrence Argent在美国Denver Convertion Center创作的蓝熊,它的趣味性打破了走廊的单调。


走廊的两条光线分别指引着两个不同区域的入口,右边的玻璃墙隐藏着工作室的LOGO,不开灯的时候,这是一堵干净的玻璃墙,丝毫看不出有什么特别;灰色的大理石地面像纽带一样,连接着两个不一样的空间。





沿着光的指引,我们首先进入左边的空间,这是属于设计部的区域。温润的原木、空旷的白、冷峻的灰,还有那一角绿色的青苔,都能让心马上平静下来;为了让办公区得到更好的视野、光线和合理的空间比例,我们提升了办公区域的地面,下面作为储物间和设备间,这样即丰富了空间的层次,又解决了收纳的问题;利用高度差,从入口到办公区域的楼梯设计成可休闲看书,可临时变成会议室的多功能区域;而办公区域上空悬吊着那条犹如艺术装置的物体,这是可根据功能需求、调节灯光色温和亮度的灯具,随着工作的心情变换工作的氛围。




右边的空间是一个完全通透纯白的空间,视觉中心是一个多功能的木盒子,它是空间挤压的产物;原本是三个独立空间打通成一个空间,暴露出结构吊顶的两根超大承重梁,这让每个功能区的空间比例受到限制。




经过反复验证,把洽谈和会议功能这个区域的地面高度降低,形成一个中转平台,并把所有的收纳功能集合在这个盒子内,用原木包裹,形成空间的枢纽中心;为了保证隐私、通风采光及安全,盒子的围挡采用矩管格栅的形式,通过格栅观看楼梯边的佛像及楼梯下行走的人,会让平静的空间产生互动的波澜。在二楼挑空的墙体上的那条缝,也是起到采光通风的作用,并避免视觉上的拥堵。










在这么安静的环境里还采用了包括智能灯光等很多科技的手段,目的是在保证空间的纯净度的同时,在使用过程中更加的便利和舒适;静界不仅仅是一种理想境界,还有对未来的感悟和憧憬。
平面布置图


一层1F平面布置图


二层2F平面布置图


立面图


立面图


立面图


立面图


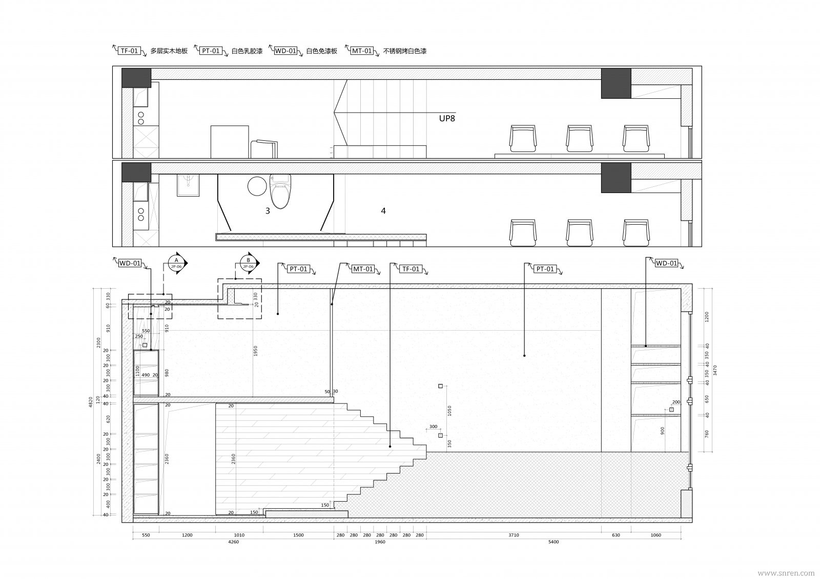
剖面图


剖面图

本帖子中包含更多资源

您需要 登录 才可以下载或查看,没有账号?立即注册

×
.....提示:网站下载资源都有备份,如遇到下载地址失效请及时联系管理员(QQ:3459039404)恢复下载地址(个别无法恢复会退币)
回复

使用道具 举报

您需要登录后才可以回帖 登录 | 立即注册

本版积分规则

室内设计工具箱

QQ|手机版|Archiver|室内人 ( 辽ICP备05022379号 )

GMT+8, 2026-3-22 17:21

Powered by Discuz! X3.5关于室内人 | QQ:3459039404(客服) | Email:snren_com@163.com

© 2001-2026 Discuz! Team.

快速回复 返回顶部 返回列表