找回密码
 立即注册

QQ登录

只需一步,快速开始


vray材质库
查看: 5870|回复: 0

[酒店] 《伴屋》 面壁思“过 l 民宿装修设计

[复制链接]

该用户从未签到

2348

主题

1085

回帖

8万

积分

版主

积分
81087
发表于 2019-2-23 10:26:58 | 显示全部楼层 |阅读模式
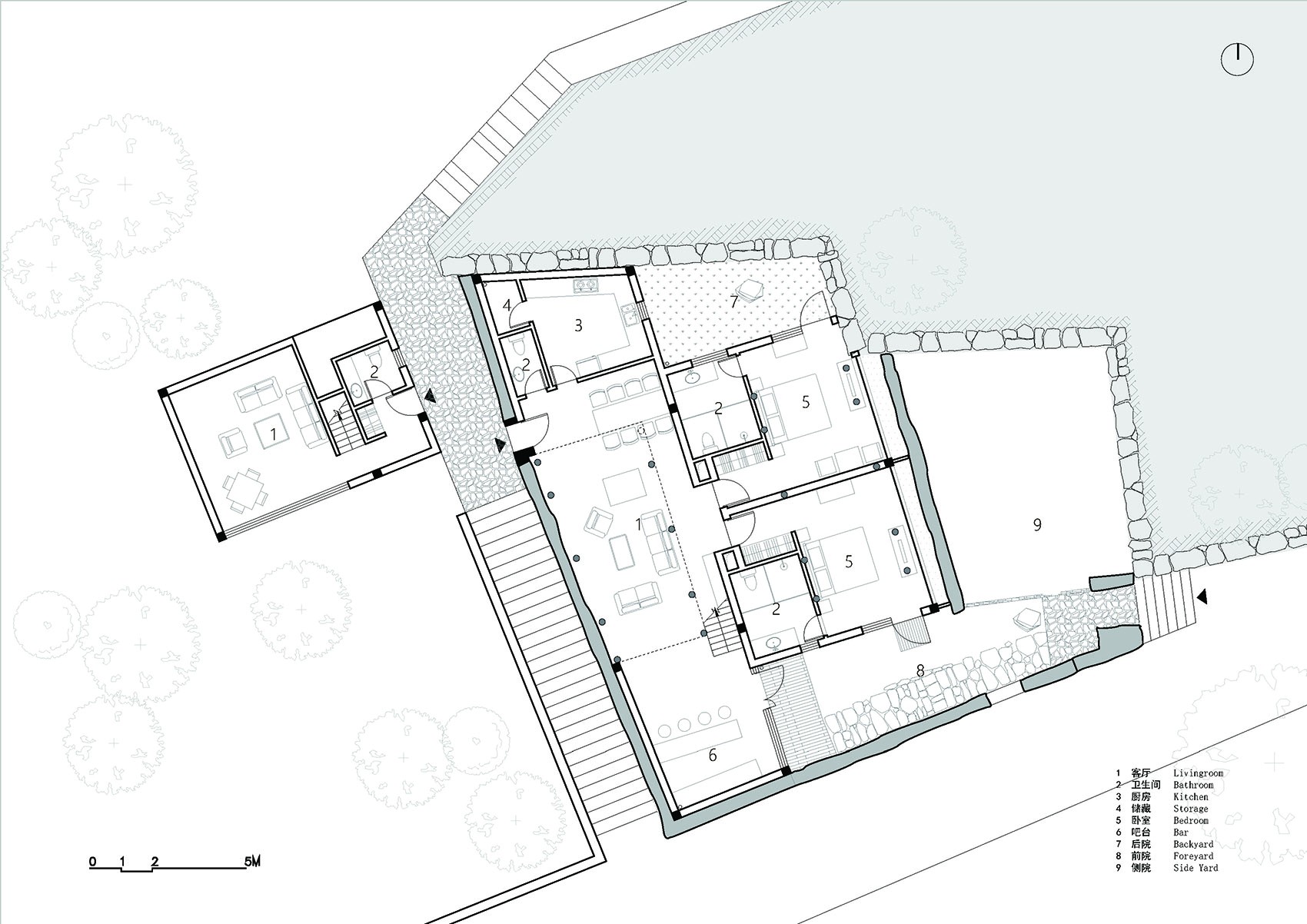
【设计方】:素建筑设计事务所
【项目类型】:民宿
【地理位置】:马科元
【设计团队】:郭少珣,谢佳辰,唐铭
【摄影】:唐徐国,陈颢
【结构】:砖混结构+钢结构屋顶
【】地面积】:200 m2
【建筑面积】:400 m2
【设计周期】:2014年10月-2015年5月
【建设周期】:2015年3月-2016年6月





基地位于浙江省莫干山,原本为一百年老宅,主体结构为夯土墙和穿斗式木结构。设计最大程度保留了夯土墙和木结构,新建部分采用砖混结构。最终新建部分与保留部分形成一种互相纠缠,你中有我我中有你的关系。
建筑不再只是一座乡村民居,变成了一座乡土博物馆,一部时光穿梭机。土墙不再是围护,木构不再是结构,而是聚光灯下的故事讲述者。
使得体验者在日常性的小尺度空间内获得了一种戏剧性的仪式感。中国人造房子,常用“大兴土木”这个说法,所谓土指夯土围护,所谓木指木构梁柱。足见古时土与木作为建筑材料的重要性。
然而到了现代,建筑中鲜见生土与原木,但是土与木带给现代人内心的情感仍然挥之不去。







基地位于浙江山地,是有一个百年历史的两层老宅,为浙西民居典型的夯土木构体系。由于年久失修,内部木结构局部塌落,外部夯土围墙由原先的白色石灰粉刷剥落成它原本的颜色,二层夯土墙倾斜严重,有塌落危险。原本甲方希望将老宅全部拆除,新建一座混凝土房子。

但考虑到这个房子作为这个村子里为数不多的老宅,斑驳的夯土墙以及黑氲的木结构尽管粗鄙,却是这个宅子乃至整个村子追忆过去的窗口,是它的价值所在。在说服甲方保留老宅的夯土和木构之后,设计变成了一个命题作文:如何在一个小尺度的老宅中兼顾现代居住的舒适度和传统文脉的延续性?



新与建

新增加部分,建筑采用混凝土框架结构,屋顶采用钢屋架独立承重。在紧贴土墙边下挖基础梁,并在土墙的内侧新建240的砖墙,作为新的建筑围护以及结构承重。使得保留的夯土墙和木结构不再参与建筑承重。拆除上层夯土墙后用黄泥修补找平,作为底模板,再在上面现浇混凝土过梁承托上部建筑重量。为了防止已经向内倾斜的夯土墙倒塌,将新建屋顶向外伸出避免夯土墙受到雨水侵蚀,另外土墙内侧通过增加横向钢撑来“扶持”土墙保证不向内部倒塌。






拆与留

经过实地勘察和测绘之后, 我们决定拆除已经腐朽的外侧檐柱以及向外倾斜的西侧山墙的二层部分。保留尚且完好的主体木结构以及其他全部夯土墙。







凿壁借光

因老房子光线昏暗,借着凿除二层夯土墙的机会,将西侧山墙上部打开,让光线进入空间,使得老屋里面光线充沛,而高窗仍然能隔断视线,内与外不至一览无余。







老宅土墙和木构得以完整的保留,并在空间里肆意呈现。土与木这两种温暖的材质本身就使得空间充满乡土质朴的味道,新加的部分都应当留白,让土木原本的色泽温润和沐浴整个空间。







面壁思“过”

通常,大尺度的空间给人纪念性,小尺度的空间给人日常性。当人处于一个内向的小空间里,视觉易被集中在一个点抑或一个面,这时候则会产生很强的聚焦性,引发时间与空间的穿插,物本身被重新定义。反而是这种聚焦给予了小尺度的空间一种意义,一种纪念性,仿佛面壁思“过”,思考的未来在过去里。







退“壁”三舍

在夯土墙和客房之间,用一道玻璃墙隔开,再用灯光打亮夯土墙。一方面增加了室内的采光,另一方面,使夯土墙犹如立于聚光灯下获得一种舞台感呈现,也使体验者退而观之,同夯土墙拉开距离,心中会升起一种仪式感。原本日常的睡眠,变成了一种回忆与观望。








本是“半”屋,半土半木,半新半旧,一半空间一半时间,两者之间并无价值的高下。从外部看,下为旧夯土墙而上为新加玻璃;从内看,底为新浇地面,而顶为老宅木架。新与旧不是互相退让、对峙、主次的关系,他们更像是一种奇妙共生,你中有我我中有你,如同话剧《暗恋·桃花源》,同一舞台上不同时空的两部戏,同时上演,又互相对话。





若把“半”屋比作一部戏剧,新建的部分,是为故事精心搭建的舞美,而夯土墙和木构,他们不再发挥原本的作用,而是聚光灯下的舞者,时光的承载者,故事的讲述者。当观众走入剧场,身处由演员和舞美共同演绎的情景之中,从感知上出现了一种时光穿越的戏剧性。“半”屋,由此,蜕变成了“伴”屋。

本帖子中包含更多资源

您需要 登录 才可以下载或查看,没有账号?立即注册

×
.....提示:网站下载资源都有备份,如遇到下载地址失效请及时联系管理员(QQ:3459039404)恢复下载地址(个别无法恢复会退币)
回复

使用道具 举报

您需要登录后才可以回帖 登录 | 立即注册

本版积分规则

室内设计工具箱

QQ|手机版|Archiver|室内人 ( 辽ICP备05022379号 )

GMT+8, 2025-12-19 12:03

Powered by Discuz! X3.5关于室内人 | QQ:3459039404(客服) | Email:snren_com@163.com

© 2001-2025 Discuz! Team.

快速回复 返回顶部 返回列表