找回密码
 立即注册

QQ登录

只需一步,快速开始


vray材质库
查看: 10638|回复: 0

[IN HOUSE] 融创中新国际城精装样板间“东方有灵”| INHOUSE设计

[复制链接]

该用户从未签到

85

主题

32

回帖

3490

积分

高级会员

积分
3490
QQ
发表于 2019-1-17 16:10:41 | 显示全部楼层 |阅读模式
项目信息

项目名称:济南融创·中新国际城精装样板间
项目面积:165㎡
项目地点:山东·济南
建成年份:2018年
项目类型:精装样板间
设计风格:新中式风格
设计负责:杜善刚
主案设计:刘婉琳、张昕
发布日期:2019.01.17


工程档案

开发单位:济南中融置业发展有限公司
软装设计:香港IN HOUSE装饰设计有限公司
软装陈设:香港IN HOUSE装饰设计有限公司
用地面积:项目总用地面积为600000㎡
项目规模(总建筑面积):总建筑面积2000000㎡
容积率:2.40
绿化率:36%

设计理念

品质时尚  东方内涵
结合当代人的生活方式和审美取向,将文化与自然融为一体,将中式用现代的方式表达出来。
整体空间融入东方沉稳灵性,用时光的痕迹细腻刻画温润与澄静,运用摩登东方语言营造当代人文高致,探寻这片天地不可复制的人文意蕴。


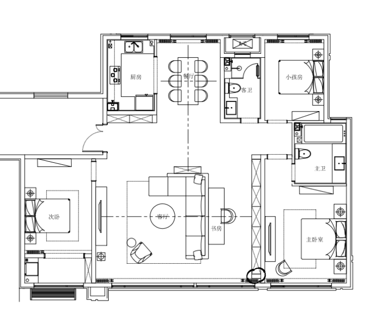
平面图


实景照片

众所周知,马鞍棕在欧洲是高贵色。本案的主色正是马鞍棕。棕色是中国传统色彩名词,棕毛的颜色,即褐色。 棕色常被联想到泥土、自然、简朴。它给人可靠、身心愉悦的感觉。
反面来讲,它被认为有些不鲜明,但可以通过使用较亮的色彩来弥补这种情况。本案选用茶白作为辅助色,以色彩鲜艳的朱砂红和比较亮的金色为点缀色,把中式的质朴赋予了时尚的味道。

客厅茶几和角几都是最经典的中式风格,点缀茶白色的瓷器和花艺,使原本沉闷的空间增添了活力。电视柜上摆放了一组融于现代与中式富有时尚及品质感的磨砂金色摆件,花艺选用朱砂红色,看似淡然却美得空灵古典。

书房与客厅是连接的,空间氛围显得更为大气。大片的落地窗,使室内视野变得更广阔,窗外风景尽收眼底。在古代,书房中除了桌、椅、橱、灯和笔、墨、纸、砚……这些基本物件外,往往还会添置几榻、乐器、香器、水器、字画、古玩、珠玉、盆栽等。
本案书房设计正是还原古代书房的原型再搭配上现代艺术,互相融合,一蹴而就。书桌是老式的长条案,桌上摆放了文房四宝和中式屏风摆件,字画放于画缸中及书架上摆放典籍和藏品都是仿古代书房的感觉设计的。而立于书架中间的一组山石艺术装置则是新中式风格。

郑板桥曾说:“室雅无须大,花香不在多”,恰巧能形容本案的餐厅意境。营造结合园林,将自然搬进室内,彰显一份灵气!餐巾饰品选用金色作为点缀,在这里金色不再只是品质高雅,还是在中式黑、朱砂红、茶百中突围而出的点睛之笔。

主卧墙上悬挂的山体装置做工起伏转折、连绵不绝。表现出山石的形态伟岸、骨体方硬,体现出山石的坚硬质感。
装饰柜立于床的一侧,主色为中式黑,把手选用金色作为点缀,与朱砂红色抱枕搭配相得益彰。
老人房与主卧相比色彩就没那么丰富了,符合老年生活的安静祥和。空间以灰色调为主,整体为中式黑的装饰柜多了一份深沉,茶白色花艺为这个空间增添了一份温馨,与中式黑为互补色。
白釉青花一火成,花从釉里透分明。女儿房选用绘画为主题,给淡雅的中式女儿房增添了一份活泼之感。


本帖子中包含更多资源

您需要 登录 才可以下载或查看,没有账号?立即注册

×
.....提示:网站下载资源都有备份,如遇到下载地址失效请及时联系管理员(QQ:3459039404)恢复下载地址(个别无法恢复会退币)
回复

使用道具 举报

您需要登录后才可以回帖 登录 | 立即注册

本版积分规则

室内设计工具箱

QQ|手机版|Archiver|室内人 ( 辽ICP备05022379号 )

GMT+8, 2026-4-2 14:04

Powered by Discuz! X3.5关于室内人 | QQ:3459039404(客服) | Email:snren_com@163.com

© 2001-2026 Discuz! Team.

快速回复 返回顶部 返回列表