找回密码
 立即注册

QQ登录

只需一步,快速开始


vray材质库
查看: 280554|回复: 4

[商业] 融创清照府售楼处“斗茶之乐”| INHOUSE设计

[复制链接]

该用户从未签到

85

主题

32

回帖

3490

积分

高级会员

积分
3490
QQ
发表于 2019-1-8 14:53:25 | 显示全部楼层 |阅读模式
项目信息

项目名称:济南融创·清照府售楼处
项目面积:802㎡
项目地点:山东·济南
建成年份:2018年
项目类型:别墅样板间
设计风格:中式风格
设计负责:杜善刚
主案设计:刘浩、刘婉琳、刘俊楠、韩波
发布日期:2018.12.28


工程档案

开发单位:济南中康置业有限公司
室内设计:香港IN HOUSE装饰设计有限公司
软装设计:香港IN HOUSE装饰设计有限公司
软装陈设:香港IN HOUSE装饰设计有限公司
用地面积:项目总用地面积为31689㎡
项目规模(总建筑面积):总建筑面积70937㎡
容积率:1.60

设计理念
淡之喧嚣,坐拥宁静;浓淡相宜,清风自来 。烹一壶茶,发现生活听见自己。

坐酌泠泠水,看煎瑟瑟尘。无由持一碗,寄与爱茶人。---白居易《山泉煎茶有怀》
整体设计都归于简约,留白空间,放空自己。在外,城市熙熙攘攘,于内感泉水叮咚松柏成荫,悠悠心静。


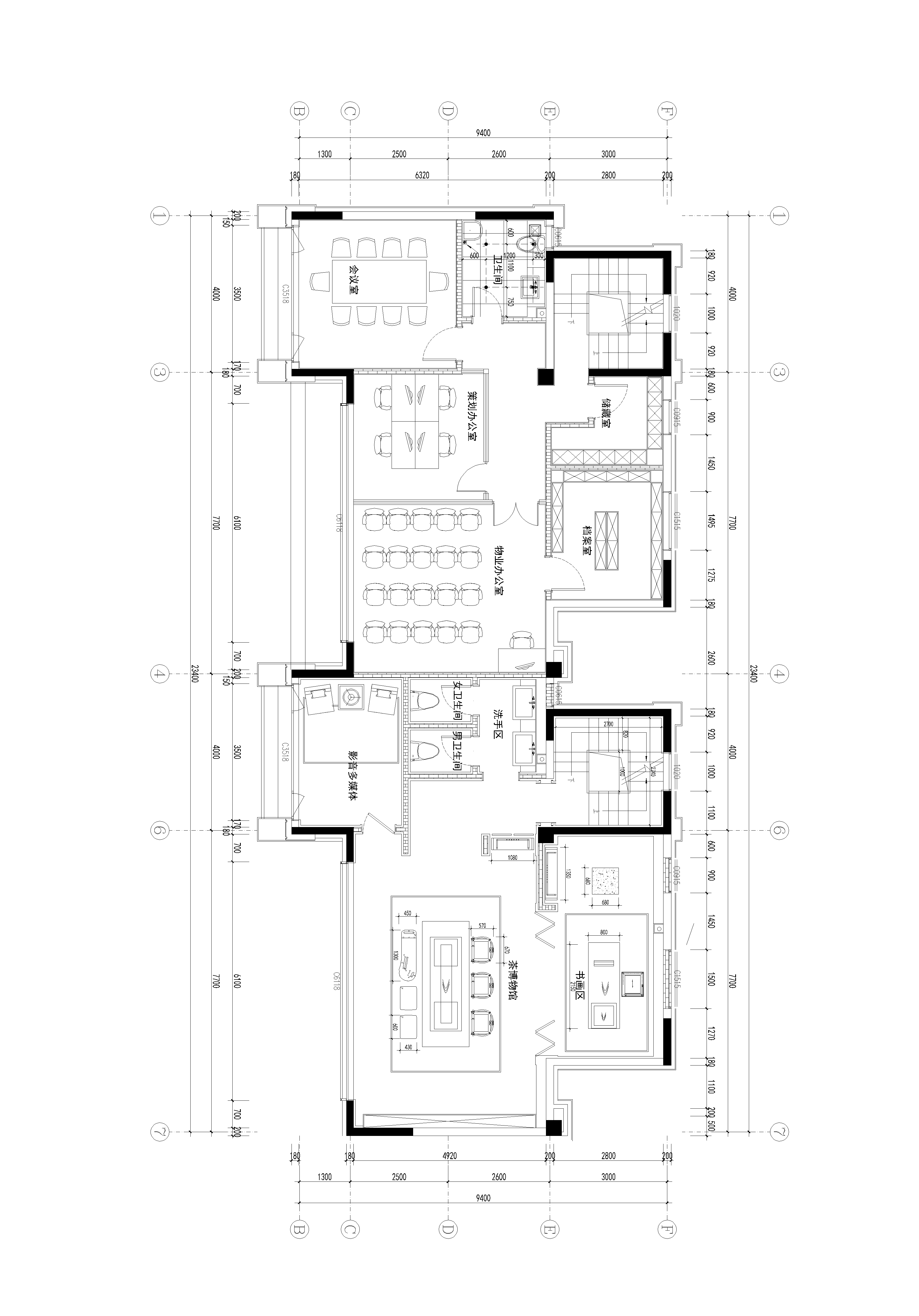
平面图

一层平面图

二层平面图

实景照片



自古以来,就有世间就有“斗茶”的乐趣。斗茶者各取所藏好茶,轮流烹煮,品评分高下。斗茶,多人共斗或两人捉对“厮杀”,三斗二胜,由此可见人们对茶的喜爱。
以泉为眼,泉水做茶,斗茶为趣。进入空间,仿佛置身于济南名泉旁边一棵大树下悠然斗茶的趣味场景,使人心旷神怡。



接待区整体简洁大气,展示柜由一个个方格拼凑而成,方格内放置了中式瓷器、艺术品和古典书籍等。接待桌上摆放的水柱型艺术装置,格外引人瞩目。
吊灯像极了一颗颗晶莹剔透的水晶球,不仅照亮了这里,还赋予了整个空间魔法的力量。



水吧大面留白的方式为空间创造了尺寸和张力,看见便感受到异于尘嚣的气息。







初步洽谈区内由简单即留白的隔墙分割成单独的空间让空间多了一份静谧。每个空间不设吊灯这样可使每个空间被更通透的展现。
林语堂曾说,茶是凡间纯洁的象征。朴素恬淡的茶室空间呈现禅味悠长的温度。既入此室,均为知己,清茶好水,以适幽趣,「会来携客试茶瓯」的闲情余绪得到最真实的表露。











深度洽谈区墙面半透刺绣挂画生动又有生机,灯光通过半透丝质画面传达一种柔和的禅意,伴随夜幕的降临,为”举杯邀明月”创造了极度切合的氛围。





进入二层品茶区品直入眼底的一组大茶桌,上方的山形吊灯干净纯粹与墙面的山型背景墙形成连贯。有了茶就有了慢的理由,喜欢上喝茶那份慢下来的节奏。饮一杯上好的茶水,来一口可心的点心,或引诗一张,或饮茶一瓯。身心一无系,浩浩如虚舟。







书画区在一笔一墨之中,见天地生息,一瓶一炉,做空间的消供。且饮,且谈,不问世间俗事,只谈琴棋诗画。

本帖子中包含更多资源

您需要 登录 才可以下载或查看,没有账号?立即注册

×
.....提示:网站下载资源都有备份,如遇到下载地址失效请及时联系管理员(QQ:3459039404)恢复下载地址(个别无法恢复会退币)
回复

使用道具 举报

该用户从未签到

8

主题

196

回帖

2782

积分

高级会员

积分
2782
QQ
发表于 2019-1-14 09:04:38 | 显示全部楼层
回复

使用道具 举报

该用户从未签到

85

主题

32

回帖

3490

积分

高级会员

积分
3490
QQ
 楼主| 发表于 2019-1-17 10:22:27 | 显示全部楼层
回复 支持 反对

使用道具 举报

该用户从未签到

169

主题

2993

回帖

2万

积分

论坛元老

积分
28497

朱雀徽章青龙徽章白虎徽章五星战将玄武徽章

发表于 2019-1-19 09:13:11 | 显示全部楼层
很有格调韵味~
回复 支持 反对

使用道具 举报

该用户从未签到

85

主题

32

回帖

3490

积分

高级会员

积分
3490
QQ
 楼主| 发表于 2019-1-22 10:52:29 | 显示全部楼层
回复 支持 反对

使用道具 举报

您需要登录后才可以回帖 登录 | 立即注册

本版积分规则

室内设计工具箱

QQ|手机版|Archiver|室内人 ( 辽ICP备05022379号 )

GMT+8, 2026-3-22 17:19

Powered by Discuz! X3.5关于室内人 | QQ:3459039404(客服) | Email:snren_com@163.com

© 2001-2026 Discuz! Team.

快速回复 返回顶部 返回列表