找回密码
 立即注册

QQ登录

只需一步,快速开始


vray材质库
查看: 5478|回复: 0

[尚舍一屋] 《柠檬初上》简美 | 杭州 | 尚舍一屋

[复制链接]

该用户从未签到

1581

主题

1065

回帖

9217

积分

金牌会员

积分
9217

青龙徽章朱雀徽章玄武徽章

发表于 2018-11-12 10:00:49 | 显示全部楼层 |阅读模式
柠檬初上

【项目地址】:西溪悦居
【项目面积】:200㎡
【项目风格】:简美
【项目性质】:精装改造
【设计公司】:尚舍一屋设计团队

【设计说明】:精装存在的户型缺陷是绝大部分客户选择简单改造的原因,思索空间韵律和平衡,探索彼此间的呼应关系,用独立空间内细节化的元素重新解构组合呈现出个性的生活场景。
                       而色彩是设计的温度,第一时间传递了主人对生活的态度。我们权衡生活和远方的交织点,崇尚简单也注重功能,深与浅、鲜明与细腻,遵循的色彩搭配法则开启生活艺术空间之旅。


古老的留声机  撺掇指针
划下慵懒时光

老画家啊
倚着花墙的凉藤 打着瞌睡

画布上的蔷薇娇笑着问
“可是我醉了这老画家?”
这清晨的庄园啊
可真是有趣

— BY Sunshinespace —


▼ |  客厅 -Living Room |

客厅主要用了蓝黄两种冷暖色调营造出明亮清新的视觉氛围,同时灰色的沙发与金属质感的家具装饰碰撞,突显了现代感的简约和时尚,也提升了空间品质格调。



在改造过程中,设计师将阳台外包,拉升了客厅的维度,同时将地下室的楼梯设置在阳台,大量的自然光线并通过透明玻璃窗被引入室内和地下空间,达到内外贯通,互相映衬的效果。








▼ |  餐厅 -Dining Room  |


餐厅和客厅通过玄关进行区隔,布局更流畅,同色系的色彩也在两个独立空间里延续,典雅沉静、含蓄内敛的灰色主色调能抚平心中的焦虑,慢下来享受一天中最安逸的一刻。金属装饰镜典雅沉静,蓝色餐椅优雅内敛,提亮了空间同时又营造出具有质感的用餐氛围。


▼ |  主卧 -Bed Room |



主卧在拆除精装自带的硬包造型后,提高了空间利用率,配合波浪的墙纸自由空灵,和窗外的光影逐一场无比柔软的梦。亚克力的书架和简约的白色书柜透露着优雅和奢华的气质,也许精致和慵懒从来不会冲突。




▼ |  次卧 -Bed Room |



卧室的设计在原先基础上,加入了一体化定制书桌书柜,贴心的保证了主人日常的收纳和学习需求。



从床品到窗幔,甚至到床幔的搭配,设计师用浪漫的粉色基调创造了一个童话般的魔力世界。



▼ |  书房 -Study Room |



延墙展开的长条书桌设计,让空间的实用性和光线达到最佳状态,飘窗边设置的小书柜,也增加了储存空间,小细节的设计也彰显了设计师对空间比例和布局的把控力。
整个书房以原木和白色为主导,借助大自然的阳光,透彻出清爽平和的味道,让空间散发出一种安宁与平静感。



▼ |  次卧 -Bed Room |



整体色彩的简单素雅,再搭配美式经典的家具以及高品质的灯具,从视觉上看起来温馨大气。设计师摈弃琐碎多余的设计,简洁明快,每个卧室的空间调性直接而又独立个性。


▼ |  地下室 -Basement |


很显然,设计师在思索空间关系时考虑了如何平衡色调组合,协调空间韵律,选择了用轻快简约的北欧风来关联。

通过石膏吊顶完美的隐藏了原本暴露在空中的水管,并且利用线条的处理拉升了空间层次,配合明亮的灯光,原本低矮阴暗的地下室,却显得明朗轻快。




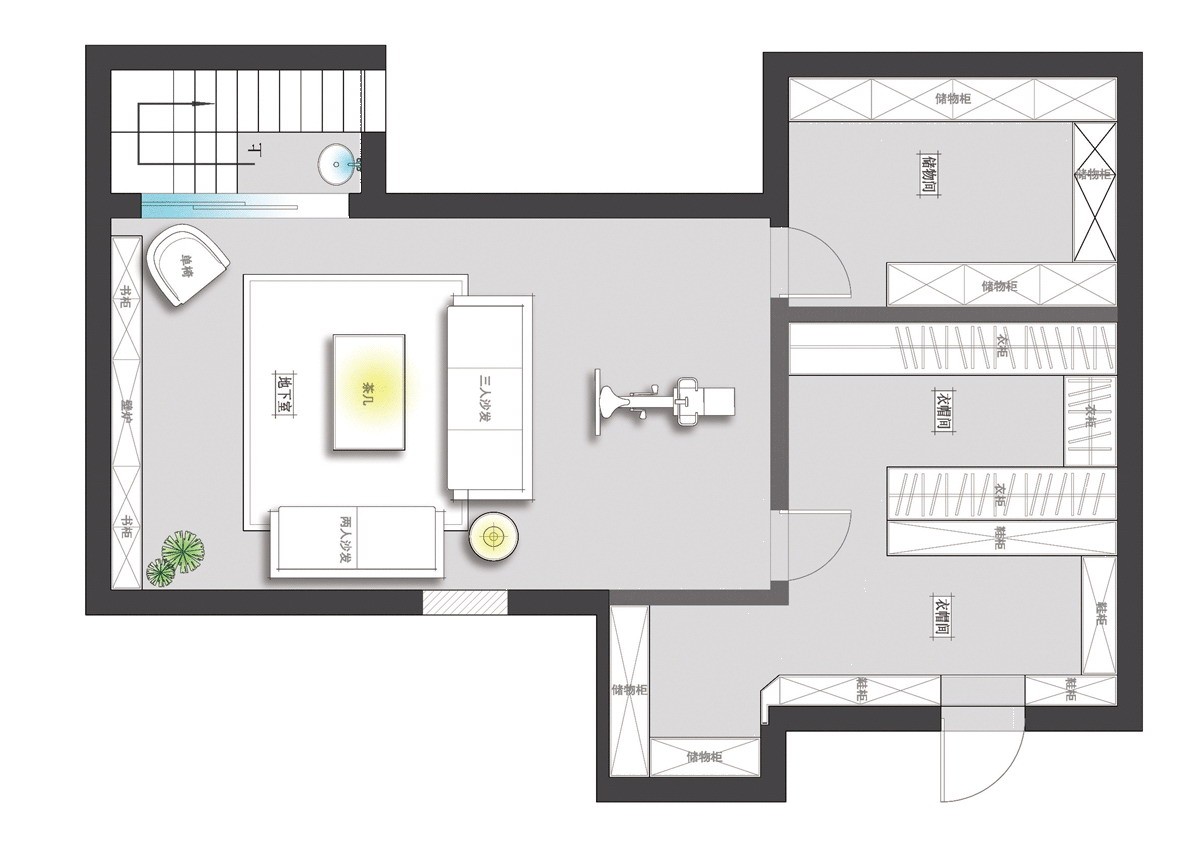
▲一楼户型图


▲地下室户型图

本帖子中包含更多资源

您需要 登录 才可以下载或查看,没有账号?立即注册

×
.....提示:网站下载资源都有备份,如遇到下载地址失效请及时联系管理员(QQ:3459039404)恢复下载地址(个别无法恢复会退币)
回复

使用道具 举报

您需要登录后才可以回帖 登录 | 立即注册

本版积分规则

室内设计工具箱

QQ|手机版|Archiver|室内人 ( 辽ICP备05022379号 )

GMT+8, 2025-12-18 17:45

Powered by Discuz! X3.5关于室内人 | QQ:3459039404(客服) | Email:snren_com@163.com

© 2001-2025 Discuz! Team.

快速回复 返回顶部 返回列表