|
13281| 8
|
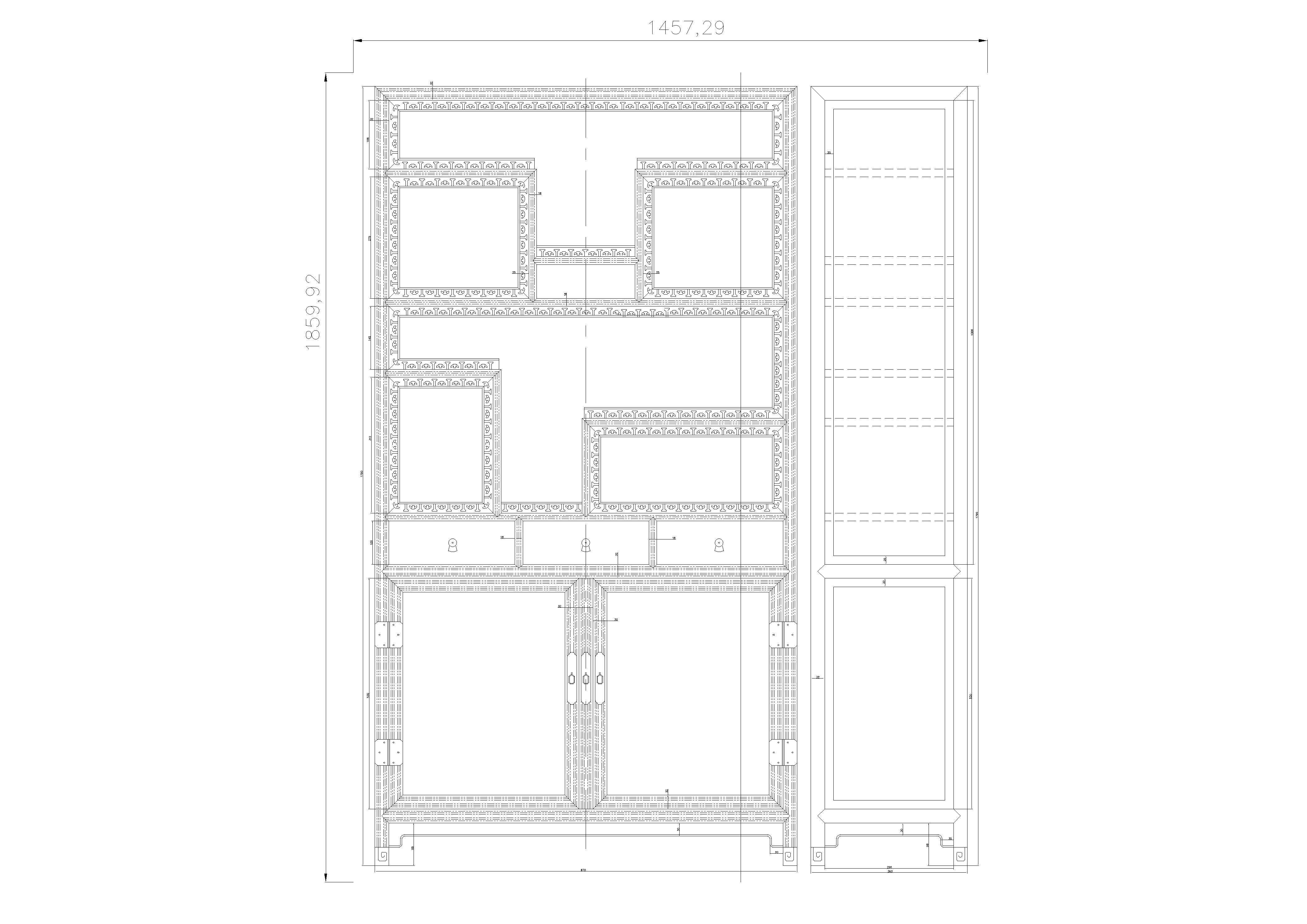
[图库] 史上最全博古架CAD施工图块 |
|
百度网盘下载,回帖有机会获得5金奖励!
[attach]348971[/attach] [attach]348970[/attach] [attach]348975[/attach] [attach]348968[/attach] [attach]348976[/attach] [attach]348977[/attach] [attach]348981[/attach] [attach]348982[/attach] 史上最全博古架CAD施工图块下载地址:
购买主题
本主题需向作者支付 20 坛币 才能浏览
| |
|
.....提示:网站下载资源都有备份,如遇到下载地址失效请及时联系管理员(QQ:3459039404)恢复下载地址(个别无法恢复会退币) |
|
回帖奖励 +5 坛币
| ||
| ||
| ||
|手机版|Archiver|室内人
( 辽ICP备05022379号 )
GMT+8, 2026-3-23 07:13
Powered by Discuz! X3.5


关于室内人 | QQ:3459039404(客服) | Email:snren_com@163.com
© 2001-2026 Discuz! Team.