找回密码
 立即注册

QQ登录

只需一步,快速开始


vray材质库
查看: 6905|回复: 1

[餐饮] 麦香村西北面馆设计

[复制链接]

该用户从未签到

315

主题

96

回帖

2万

积分

论坛元老

积分
26455
发表于 2018-5-6 08:22:17 | 显示全部楼层 |阅读模式
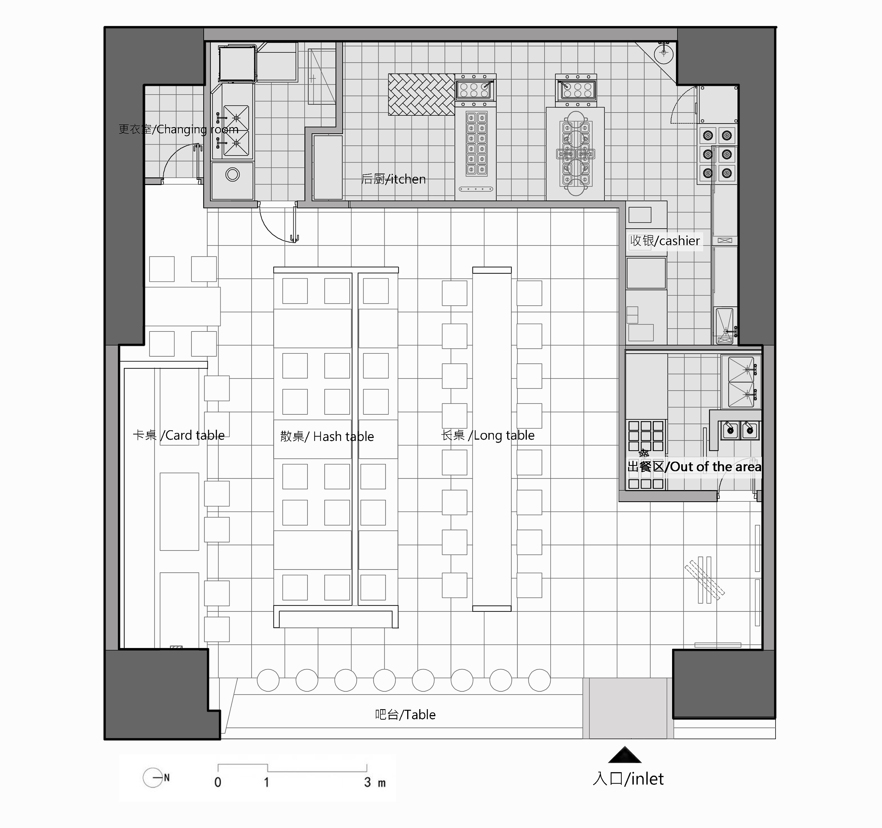
项目名称:“麦乡村”西北面食餐厅
设计单位:杭州全文室内设计
摄 影 :邱日培
项目地址:上海闵行区万象城B1 地铁口
项目面积:150平米
竣工日期:2017年10月
主要材料:定制水磨石、白瓷砖、水泥、木质、黄铜、镀锌铁板
       麦香村是西贝莜面村旗下西北面食品牌。
       设计试图打破人们对传统西北面老旧的形象,摒弃不同地域所属的浓郁色彩,以简单的材质表达面食的理解,打造时尚明快的就餐环氛围。运用澳洲洞石、水磨石、木材与不锈钢等朴素的材料赋予空间丰富的表现力,去除一切装饰元素,展现无国界无地域的崭新西北面馆形象。
       位于上海万象城的首家店铺围绕这一概念展开,以建筑化的设计方式契合空间语言,强调形式体块,点线面的穿插运用。设计打破传统店铺外立面概念,把餐厅内部空间对外开放,吸引更多在店铺外游走的潜在客群。通过外延的不锈钢搁板餐区融合内与外的关系,视觉上敞开,流线上控制。
       整体呈现方形平面,均匀分散状态 植入L行厨房体块 长条状卡座区域 分割重建空间。中心工字型大理石隔断结合侧边长条卡座的设计, 形成清晰流畅的进出餐流线,简洁而灵动。让用餐区保有秩序感和整体性,同时给予顾客舒适开敞的视觉体验。
       在洞石包裹的厨房体中嵌入线性长窗,集中视线范围,展示师傅拉面手作的过程 ,匠心呈现。
       自助点餐区和大长桌上方内凸体块与整体低矮的吊顶形成强烈反差,形成错落有致的空间纵深感。内凸造型内含新风空调系统,赋予白色灯光模拟自然天光的氛围。天花吊顶整合建筑梁柱结构及消防设施,以干净利落、具有整体性的空间表达,对原有劣势结构进行功能上的拆解与视觉整合,完成了空间建筑感的构造。















本帖子中包含更多资源

您需要 登录 才可以下载或查看,没有账号?立即注册

×
.....提示:网站下载资源都有备份,如遇到下载地址失效请及时联系管理员(QQ:3459039404)恢复下载地址(个别无法恢复会退币)
回复

使用道具 举报

该用户从未签到

315

主题

96

回帖

2万

积分

论坛元老

积分
26455
 楼主| 发表于 2018-5-6 08:23:37 | 显示全部楼层












































本帖子中包含更多资源

您需要 登录 才可以下载或查看,没有账号?立即注册

×
回复 支持 反对

使用道具 举报

您需要登录后才可以回帖 登录 | 立即注册

本版积分规则

室内设计工具箱

QQ|手机版|Archiver|室内人 ( 辽ICP备05022379号 )

GMT+8, 2026-3-22 18:54

Powered by Discuz! X3.5关于室内人 | QQ:3459039404(客服) | Email:snren_com@163.com

© 2001-2026 Discuz! Team.

快速回复 返回顶部 返回列表