找回密码
 立即注册

QQ登录

只需一步,快速开始


vray材质库
查看: 5007|回复: 1

[家居] 杭州西湖玉皇山老破阁楼房设计改造

[复制链接]

该用户从未签到

1605

主题

750

回帖

8341

积分

金牌会员

积分
8341

青龙徽章白虎徽章朱雀徽章玄武徽章

发表于 2018-1-23 16:38:14 | 显示全部楼层 |阅读模式
项目名称:杭州西湖玉皇山老破阁楼房设计改造
作品名称:《珍物记忆,新与旧之说》

设计单位:ATDESIGN|杭州时上建筑空间设计事务所
设计内容:室内设计,建筑改造,庭院改造
主案设计:沈墨

设计团队:陶建浦,赵文兵
项目规模:50室内
项目施工:郑强
项目摄影:戚朔迁
完工时间:2017.6
公司地址:杭州江干区钱江新城航空大厦2-2111-2112

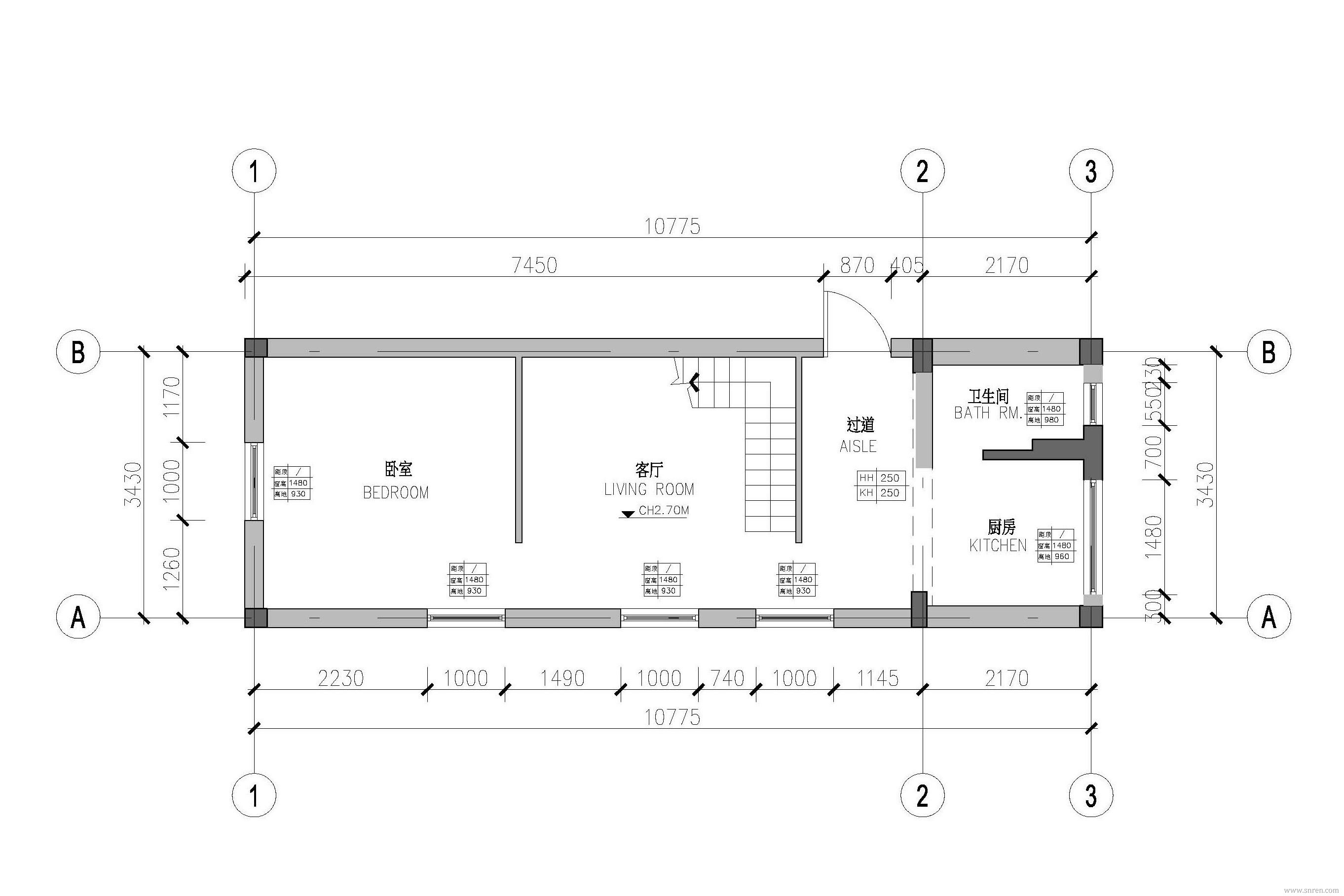
    这是浙江卫视公益改造节目《全能宅急变》的改造项目,第8集。拜访这家人的旧宅,第一印象就是东西杂乱,建筑空间非常破败,房子的功能和动线混乱,室内光线昏暗,空气不对流,储藏空间严重不足,建筑漏水和霉气,外部的爬藤植物已经入侵室内,虫鼠隐患,水电安全等等,最主要是母女共同生活的一间房里,即感受不到一起生活的亲切气息,也没有个人私密空间,这种关系亟需调整。都需要彻底改变。这是一个建筑内外和生活方式的重新考虑。

This is the Zhejiang TV public welfare program "all-round house emergency" transformation project, Episode 8. Visit the family's old house, the first impression is that things are messy, the building space is very dilapidated, the house features and moving lines chaos, indoor light dim, air convection, a serious shortage of storage space, building leakage and mold gas, the external climbing plants have Invasion of the room, pests and dangers, water and electricity security, etc., the most important is the mother and daughter live together in the house, that is, do not feel the warmth of life together, there is no space, this relationship needs to be adjusted. Need to be completely changed. This is a reconsideration of both inside and outside the building.















本帖子中包含更多资源

您需要 登录 才可以下载或查看,没有账号?立即注册

×
.....提示:网站下载资源都有备份,如遇到下载地址失效请及时联系管理员(QQ:3459039404)恢复下载地址(个别无法恢复会退币)
回复

使用道具 举报

该用户从未签到

1605

主题

750

回帖

8341

积分

金牌会员

积分
8341

青龙徽章白虎徽章朱雀徽章玄武徽章

 楼主| 发表于 2018-1-23 16:39:55 | 显示全部楼层








































本帖子中包含更多资源

您需要 登录 才可以下载或查看,没有账号?立即注册

×
回复 支持 反对

使用道具 举报

您需要登录后才可以回帖 登录 | 立即注册

本版积分规则

室内设计工具箱

QQ|手机版|Archiver|室内人 ( 辽ICP备05022379号 )

GMT+8, 2025-12-19 10:25

Powered by Discuz! X3.5关于室内人 | QQ:3459039404(客服) | Email:snren_com@163.com

© 2001-2025 Discuz! Team.

快速回复 返回顶部 返回列表