|
10653| 0
|
[设计教程] 工装.办公.会所.酒店.客栈平面布局优化教程-壹品曹-第五期 |

|
壹品曹《第五期视频教程公开课》工装、办公、会所、酒店、客栈平面布局优化
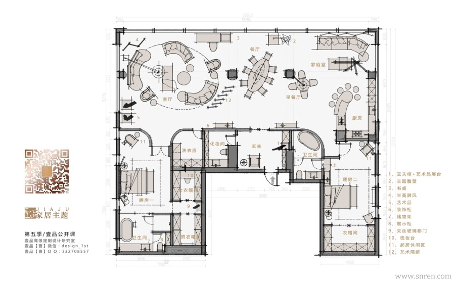
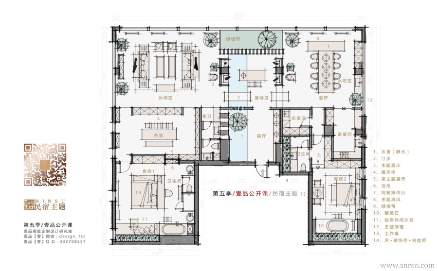
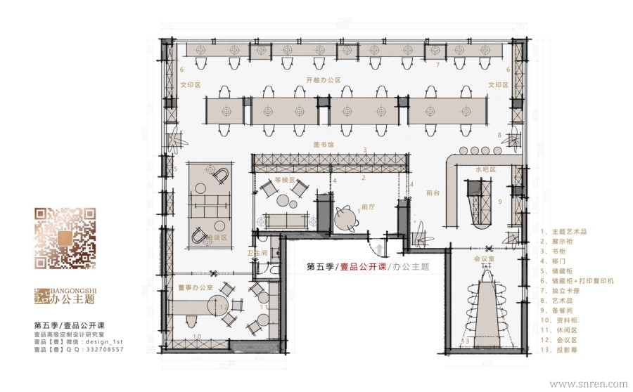
主要内容讲主要讲解样板房、会所、办公室、售楼处、酒店公寓、书吧、水疗主题、民宿、咖啡馆等等不同类别的,场景平面户型优化教程! 高端人群定位设计,把工装思维导入家装,10种套路满满的。 学习快速提高你的设计水平 内容包括:3套风格意向图+课程10张平面图+10套SU截图+10个教程解析教程和源文件!总共10节视频教程 [attach]412888[/attach] [attach]412878[/attach][attach]412879[/attach][attach]412880[/attach][attach]412881[/attach][attach]412883[/attach][attach]412884[/attach][attach]412885[/attach][attach]412886[/attach][attach]412887[/attach][attach]412882[/attach] 工装.办公.会所.酒店.客栈平面布局优化视频教程-壹品曹-第五期下载地址:
购买主题
已有 1 人购买
本主题需向作者支付 66 坛币 才能浏览
| |
|
.....提示:网站下载资源都有备份,如遇到下载地址失效请及时联系管理员(QQ:3459039404)恢复下载地址(个别无法恢复会退币) |
|
|手机版|Archiver|室内人
( 辽ICP备05022379号 )
GMT+8, 2026-3-24 15:17
Powered by Discuz! X3.5


关于室内人 | QQ:3459039404(客服) | Email:snren_com@163.com
© 2001-2026 Discuz! Team.