找回密码
 立即注册

QQ登录

只需一步,快速开始


vray材质库
查看: 4752|回复: 0

[家居] 台北住宅 | 水相设计

[复制链接]

该用户从未签到

1767

主题

1009

回帖

8700

积分

金牌会员

积分
8700
发表于 2017-8-26 09:35:49 | 显示全部楼层 |阅读模式
空间设计:李智翔, 廖婉君/水相设计
业主:鄢先生
空间性质:住宅
座落位置:台北市区
室内面积:119平方米
空间格局:卧室+客厅+卫浴+厨房+餐厅
设计时间:2016.04-2016.05
施工时间:2016.05-2016.11
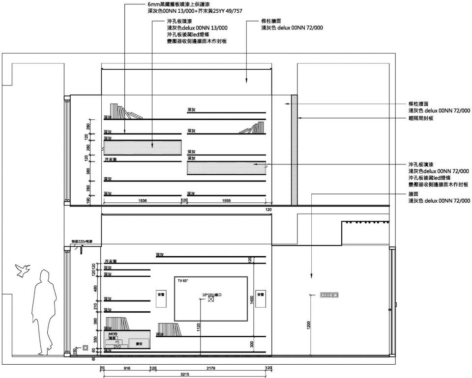
主要材料:黑铁烤漆, 金属冲孔版, 玫瑰木木皮, 尤加利锯痕自然拼, 铁刀木皮钢刷质感, 喷砂压克力, 手工漆, 卡拉拉白大理石, 赛丽石, 观音石, 雅士白大理石, 浅灰白色薄砖
摄影:李国民
       兼备制版、压模、雷雕、烫金等工艺设计品味的灵魂,从事喜帖设计的女主人,在香氛品牌Mad et Len中找到手作限定与简练姿态的著迷质感。让空间拟作一瓶香氛艺术,生活的温度成为「记忆味道」的最佳萃取,将业主夫妇日常,如三铁、阅读等习惯,幻化如因子在空气中扩散,高挑複层书牆与展架,提炼出居家个性印象。拣选品牌的艺匠手制与简约色调,扶引出手感媒材,如手工漆、钢刷木皮等,取代俐落机械感,在各式白料底材上,以线性及色块在低限下淬酿,划分秩序与空间错置。
线性
Linearity
遵循Mad et Len罐身的洒脱洗练,将原始的线面几何幻化如灯带、层板,在室内行水平垂直、分割排列,转化架构与区块,隐藏细节中的凝鍊黑、黄色调,留下实体线性的厚度与层次。层层叠叠,减之又减,挑高线性书牆极简如林寿宇的低限艺术,跳色和夹层的佈局成就一场空间错置的幽默戏法。
流动
Flow
韵律犹如三铁,展架为平行空间写下一段速率的流动,延展出主人的生活轨迹。用平行层板扬起一牆对位谱,音律在白底牆面营造出呼吸的起伏频率。在流动下赋予一方独处意象,让夕照洒穿夹层冲孔网格,各式的虚像光点幻化成一幕幕流淌的时光飨宴。



























本帖子中包含更多资源

您需要 登录 才可以下载或查看,没有账号?立即注册

×
.....提示:网站下载资源都有备份,如遇到下载地址失效请及时联系管理员(QQ:3459039404)恢复下载地址(个别无法恢复会退币)
回复

使用道具 举报

您需要登录后才可以回帖 登录 | 立即注册

本版积分规则

室内设计工具箱

QQ|手机版|Archiver|室内人 ( 辽ICP备05022379号 )

GMT+8, 2025-12-18 05:57

Powered by Discuz! X3.5关于室内人 | QQ:3459039404(客服) | Email:snren_com@163.com

© 2001-2025 Discuz! Team.

快速回复 返回顶部 返回列表