找回密码
 立即注册

QQ登录

只需一步,快速开始


vray材质库
查看: 4693|回复: 0

[家居] 深圳华侨城LOFT公馆 【归•自在】

[复制链接]

该用户从未签到

4

主题

0

回帖

20

积分

新手上路

积分
20
发表于 2017-8-12 14:08:23 | 显示全部楼层 |阅读模式
作品名称:深圳华侨城LOFT公馆 【•自在
设计团队:DID设计】鼎点室内设计团队
主案设计:罗淞元 、程施洋
协助设计:邓威、吴煜、曹振一
设计风格:现代 LOFT
建案地点:深圳华侨城锦绣花园四期LOFT公馆
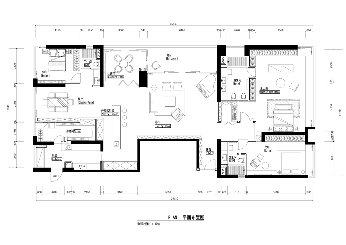
空间面积332m2
空间格局:三室两厅卫浴
主要材料:爵士白大理石,原木色做旧实木,透光灯片,铜条,米色拼花砖
摄影:Sia
设计说明从自然、纯粹的基本空间表现元素中提炼出耐人咀嚼的居家规划构思,用最简化的语汇,贯穿不同的功能空间,将各项机能融合,保持各空间相对独立的同时,又确保了风格的一致性、动线的流畅性、设计的完整性。
一切的设计都是对行为方式的深入研究,生活的态度所呈现的独到之处,来自于整体的质量,来自于每一个细节的精致。表现一种生活的状态,讨论人与人的互动及存在价值。 以线条、造型、比例的对应,为整体定调。以实用机能、丰富采光、通风对流、动线流畅作为设计原则,藉由空间结构、节点的延伸,迭合出独特而丰饶的居住体验,空间彼此交迭,引导渐进式的层次律动。再经由材质的特性,领略到生活的质感,纯粹的表达出空间的真实情感。
LOFT的空间有非常大的灵活性,人们可以随心所欲地创造自己梦想中的家、梦想中的生活,丝毫不会被已有的机构或构件所制约。人们可以让空间完全开,也可以对其分割,从而使它蕴涵个性化的审美情趣
LOFT使居者即使在繁华的都市中,也仍然能感受到身处郊野时那样不羁的自由
本案色彩以白色为主调,打破传统室内空间色彩模式,融入几种深色,使客餐厅呈现明亮开阔且自由的独特空间,色彩明暗对比强烈和谐统一

打开门第一眼映入眼帘的是一架钢琴,这是客厅的舞台,为家庭氛围提供更多亲密的活动的机会,为远方的客人展示独特的空间气质
开放的厨房亦展现的自由的LOFT风格,宽敞的台面也给主人营造了一个舞台,灯具既起到分割空间的作用,又与中岛产生一种动与静的关系
绿色的墙,木质的书柜,仿佛把餐厅带进了大自然中,让原本轻松的用餐变得更加惬意
加入的休闲区增加了空间的使用功能,并用折叠门将休闲区和生活区分割开来,既不失自由,又使空间充满变化
温和的现代家具与横向长窗使主卧更加自由现代,棕色的背景墙和木色家具的搭配使卧室色彩更加柔和,同时和黑色长吊灯一起丰富了卧室的空间层次感
卫生间是主人的私密空间,可以尽情的放纵自由之风,深色地砖、墙砖与白色马桶、天花相互对比,密集的马赛克图案与大体块的墙、地砖形成疏密对比,共同营造了自由活跃的空间氛围




本帖子中包含更多资源

您需要 登录 才可以下载或查看,没有账号?立即注册

×
.....提示:网站下载资源都有备份,如遇到下载地址失效请及时联系管理员(QQ:3459039404)恢复下载地址(个别无法恢复会退币)
回复

使用道具 举报

您需要登录后才可以回帖 登录 | 立即注册

本版积分规则

室内设计工具箱

QQ|手机版|Archiver|室内人 ( 辽ICP备05022379号 )

GMT+8, 2025-12-19 10:37

Powered by Discuz! X3.5关于室内人 | QQ:3459039404(客服) | Email:snren_com@163.com

© 2001-2025 Discuz! Team.

快速回复 返回顶部 返回列表