找回密码
 立即注册

QQ登录

只需一步,快速开始


vray材质库
查看: 5468|回复: 0

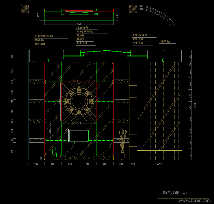
[别墅] 别墅家装施工图

[复制链接]

该用户从未签到

1283

主题

548

回帖

5万

积分

论坛元老

积分
56264
发表于 2017-4-8 15:22:02 | 显示全部楼层 |阅读模式
cad2004



















别墅家装施工图 下载地址
百度网盘下载链接:http://pan.baidu.com/s/1pLLhTKf 密码:1taj

本帖子中包含更多资源

您需要 登录 才可以下载或查看,没有账号?立即注册

×
.....提示:网站下载资源都有备份,如遇到下载地址失效请及时联系管理员(QQ:3459039404)恢复下载地址(个别无法恢复会退币)
回复

使用道具 举报

您需要登录后才可以回帖 登录 | 立即注册

本版积分规则

室内设计工具箱

QQ|手机版|Archiver|室内人 ( 辽ICP备05022379号 )

GMT+8, 2026-4-29 18:54

Powered by Discuz! X3.5关于室内人 | QQ:3459039404(客服) | Email:snren_com@163.com

© 2001-2026 Discuz! Team.

快速回复 返回顶部 返回列表