找回密码
 立即注册

QQ登录

只需一步,快速开始


vray材质库
查看: 19014|回复: 4

[家居] 《启示》——成都壹阁设计-钟莉

[复制链接]

该用户从未签到

1605

主题

750

回帖

8341

积分

金牌会员

积分
8341

青龙徽章白虎徽章朱雀徽章玄武徽章

发表于 2016-11-1 20:46:27 | 显示全部楼层 |阅读模式
项目名称:        启示
坐落地点:        龙湖世纪峰景
项目面积:        88 平方米
设计公司:        成都壹阁高端室内设计事务所
主设计师:        钟莉
设计时间:       
项目性质:        住宅

点,宇宙的起源,没有任何体积,被挤在宇宙的‘边缘’,是所有图形的基础。
线,由无数个点连接而成。
面,由无数条线组成。

Design description:
POINT,the origin of the universe, without any volume; it’s being squeezed into the'edge' of the universe, the basis for all shapes.
LINE,connected by a myriad of points.
SURFACE,constructed by multiple lines
设计,无非就是点线面的结合,产生不同的视觉感受。
通过设计师的巧妙构思,以线条分层带动空间感官,配以不同的颜色营造出空间的层次感。将原有的空间结构得到合理有效的功能性运用,追求一种整体的平面化与局部的立体化,将两者保持在视觉的黄金平衡点上,造成一个空间错觉。
整个空间的设计充满着时尚美学的元素,打造一个被各种深浅不一、不断延伸的线条结构以及不同的几何图形包覆着的住宅空间。内部设计充斥着鲜明硬朗的线条和随处可见的独特设计元素的应用。









本帖子中包含更多资源

您需要 登录 才可以下载或查看,没有账号?立即注册

×
.....提示:网站下载资源都有备份,如遇到下载地址失效请及时联系管理员(QQ:3459039404)恢复下载地址(个别无法恢复会退币)
回复

使用道具 举报

该用户从未签到

1605

主题

750

回帖

8341

积分

金牌会员

积分
8341

青龙徽章白虎徽章朱雀徽章玄武徽章

 楼主| 发表于 2016-11-1 20:47:47 | 显示全部楼层












本帖子中包含更多资源

您需要 登录 才可以下载或查看,没有账号?立即注册

×
回复 支持 反对

使用道具 举报

该用户从未签到

1605

主题

750

回帖

8341

积分

金牌会员

积分
8341

青龙徽章白虎徽章朱雀徽章玄武徽章

 楼主| 发表于 2016-11-1 20:48:23 | 显示全部楼层
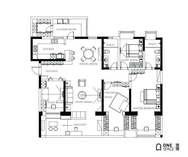
平面布置图

本帖子中包含更多资源

您需要 登录 才可以下载或查看,没有账号?立即注册

×
回复 支持 反对

使用道具 举报

该用户从未签到

8

主题

196

回帖

2782

积分

高级会员

积分
2782
QQ
发表于 2016-11-2 08:57:32 | 显示全部楼层
交换空间上播出了
回复 支持 反对

使用道具 举报

该用户从未签到

169

主题

2993

回帖

2万

积分

论坛元老

积分
28497

朱雀徽章青龙徽章白虎徽章五星战将玄武徽章

发表于 2016-11-2 18:53:57 | 显示全部楼层
个性化作品!
回复 支持 反对

使用道具 举报

您需要登录后才可以回帖 登录 | 立即注册

本版积分规则

室内设计工具箱

QQ|手机版|Archiver|室内人 ( 辽ICP备05022379号 )

GMT+8, 2025-12-20 10:47

Powered by Discuz! X3.5关于室内人 | QQ:3459039404(客服) | Email:snren_com@163.com

© 2001-2025 Discuz! Team.

快速回复 返回顶部 返回列表