找回密码
 立即注册

QQ登录

只需一步,快速开始


vray材质库
查看: 10041|回复: 3

[台湾] 闹市中的安宁木居,台湾,台北 | 禾筑设计

[复制链接]

该用户从未签到

1283

主题

548

回帖

5万

积分

论坛元老

积分
56278
发表于 2016-7-5 09:34:15 | 显示全部楼层 |阅读模式
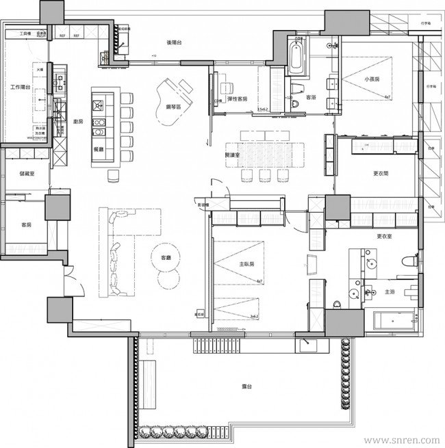
空间规划:前后露台,客厅,餐厅,书房,主卧,次卧x3, 主浴,客浴
面积: 88坪/290平方米
居住人口: 6 人
房屋型式: 新屋
主要建材:玫瑰木、订製胡桃木皮、胡桃实木、石英石檯面、茶镜、磁性漆、白板漆、白板玻璃、银狐大理石、金峰大理石、钢刷胡桃木皮、薄片砖、铁件烤漆、金属钛板、投影漆、雾烤、橡木染白自然纹钢刷木地板、雾面石英砖、夹砂 压克力、纤维水泥板、植生牆
这是一个很会经营生活的女主人,在忙碌的工作与家庭生活当中,从烹饪,手作,摄影,音乐等各种活动来增进朋友家人的感情,更擅于用各种3C工具记录,影片剪辑来串联所有的活动轨迹与记忆,是一个知性与感性并存的生活家。房子坐落在一高楼层的都市空间,拥有两个大露台的宽大空间。房子本身条件极佳,阳光充足,通风良好。屋主特别喜好木头的材质,选了一个北美胡桃木纹理的厨具,以此为主要调性并整合以上的屋况条件。禾筑设计希望打造出一个温暖,有屋主个性的现代舒适好宅。
公共空间之客厅,餐厅,厨房的关系采取自由开放的平面格局,通往私密空间(卧房)的过道,规划出为家人们共同的书房阅读区。纹理自然高贵的北美胡桃木为主要肌理搭配白色银狐大理石延伸开来,精确的规划木质材与白色的质材比例分配,崁入条状分佈的灯光设计与弧形的天花板造型让空间感开阔壮大,无高低差平整的地坪更点出了全场域畅行无阻的概念。
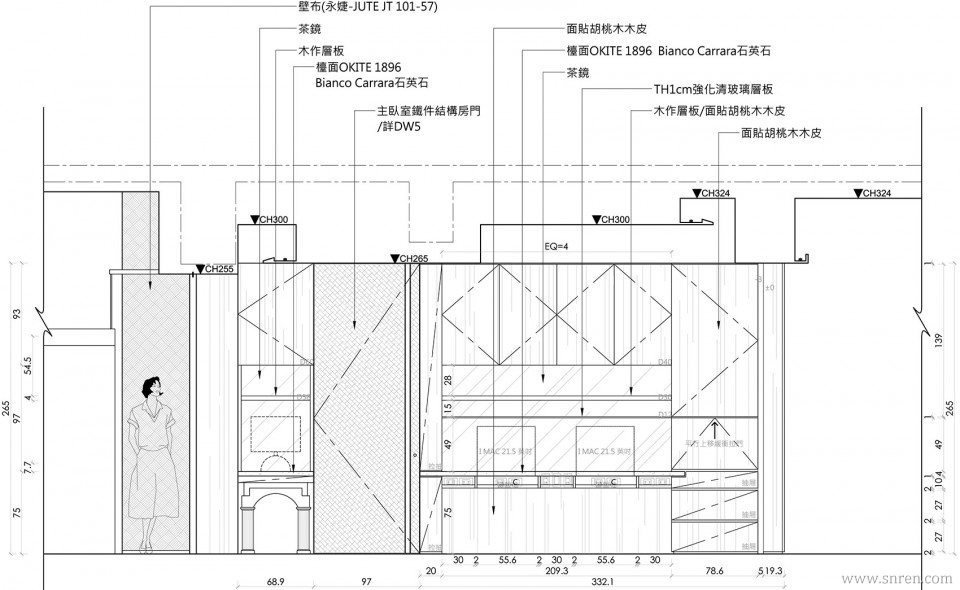
此案件也可以说是一个高度客製化与细緻化,”每日的生活”的居家设计,所有的设定均以主人生活动线与习惯来模拟并加入丰富的创意量身订做,聪明的收纳与整合的巧思处处可见,如书房区域可归位的手动推车,滑轨抽屉收纳所有的材料。
电源开关与电线的层次收藏定位,厨房中方便随时归位的层板内吸铁,置放烹饪用品,调味料的收纳柜等,都是为了女主人使用便利以一目了然的方式规划。
玄关展开式门片内鞋柜层板45度倾斜之设计,主浴室双向面盆化妆柜运用金属架构出耒,除了视觉的穿透感之外也运用此为浴室之’隔间’等等,再再都是符合屋主生活习惯及人体工学与创意的想法。
另外为了主人的爱好与兴趣的各种设计,如:景观露台与植生牆,宠物狗狗的专属饭食区与造型任意门。钢琴演奏区与中岛定位摄影还有以整片牆来观赏的投影电视牆,可以一边在录影做菜的过程,一边同步在电视牆中即时端赏,集高度艺术与高端科技之大成。
兼具个性化与实用化,重视”人的使用”,延续屋主的生活经验并为居住者创造新的生活体验,此案最精彩也最重要的核心所在。







本帖子中包含更多资源

您需要 登录 才可以下载或查看,没有账号?立即注册

×
.....提示:网站下载资源都有备份,如遇到下载地址失效请及时联系管理员(QQ:3459039404)恢复下载地址(个别无法恢复会退币)
回复

使用道具 举报

该用户从未签到

1283

主题

548

回帖

5万

积分

论坛元老

积分
56278
 楼主| 发表于 2016-7-5 09:35:53 | 显示全部楼层






























本帖子中包含更多资源

您需要 登录 才可以下载或查看,没有账号?立即注册

×
回复 支持 反对

使用道具 举报

该用户从未签到

1283

主题

548

回帖

5万

积分

论坛元老

积分
56278
 楼主| 发表于 2016-7-5 09:36:44 | 显示全部楼层









本帖子中包含更多资源

您需要 登录 才可以下载或查看,没有账号?立即注册

×
回复 支持 反对

使用道具 举报

该用户从未签到

0

主题

16

回帖

280

积分

中级会员

积分
280
发表于 2016-7-24 11:07:55 | 显示全部楼层
回复

使用道具 举报

您需要登录后才可以回帖 登录 | 立即注册

本版积分规则

室内设计工具箱

QQ|手机版|Archiver|室内人 ( 辽ICP备05022379号 )

GMT+8, 2026-5-12 04:17

Powered by Discuz! X3.5关于室内人 | QQ:3459039404(客服) | Email:snren_com@163.com

© 2001-2026 Discuz! Team.

快速回复 返回顶部 返回列表