找回密码
 立即注册

QQ登录

只需一步,快速开始


vray材质库
查看: 7295|回复: 3

[胭脂设计] 美式· 栖居生活 【胭脂原创设计实景】

[复制链接]

该用户从未签到

1767

主题

1009

回帖

8710

积分

金牌会员

积分
8710
发表于 2016-6-10 10:06:23 | 显示全部楼层 |阅读模式
       本案例来自广州珊瑚天峰,业主喜欢美式风格怀旧、质感、自在、不造作、不突兀、不盲从的调性。充满历史感的仿古砖、色泽温馨的墙布、怀旧质感的美式实木家具、清新自然的花卉......营造出一派舒心、自然的美式之家。
【地  区】: 番禺珊瑚天峰
【户  型】:四房两厅两卫
【面  积】:192平方
【风  格】:美式乡村风格
【预  算】:40万
【设计说明】:把生活阳台融入厨房,扩大厨房空间;儿童房两儿童分别独立床;从实用角度出发,把原卫生间更改设计一个大衣柜;主人房设计一个衣帽间和阅读区;长辈房外面的空间设计一个休闲区并兼储物空间。
客 厅


没有繁冗的杂乱家具,简洁的茶几,沙发套椅,摆件就构成了一个颇有美式韵味的客厅


当墙上的吊灯洒下暖暖的光影,米色墙壁泛着温馨的色泽


餐后,与家人一起倚靠舒适的沙发上,欣赏着欢乐频道,共享天伦,这不正是我们追求的生活吗?


餐 厅
餐厅处仍选用实木桌椅,没有浮夸的装饰,宽敞而明亮。仿古砖与做旧白色护墙板的搭配,营造出和谐、温馨、惬意的氛围。



进门玄关以手工帆船复古摆设为主角,自然过渡。也寓意着主人对未来生活的期许,万事皆一帆风顺!


厨 房
若想充分展示厨艺,尽享烹饪乐趣,少不了一个足够宽敞的空间。原有的厨房空间不够大,于是设计中将生活阳台融入,扩大了厨房空间。橱柜用实木材质打造,实木家具特有的温润质感,置身其中,让人有一种无法言说的充实感。



扩大了的厨房空间,摆放实用双门冰箱自然也不在话下

本帖子中包含更多资源

您需要 登录 才可以下载或查看,没有账号?立即注册

×
.....提示:网站下载资源都有备份,如遇到下载地址失效请及时联系管理员(QQ:3459039404)恢复下载地址(个别无法恢复会退币)
回复

使用道具 举报

该用户从未签到

1767

主题

1009

回帖

8710

积分

金牌会员

积分
8710
 楼主| 发表于 2016-6-10 10:11:55 | 显示全部楼层
过 道            
玻璃趟门使得过道通透明亮;一幅颇有艺术风味的画静静守候;左边远处为拉平电梯井凹位特意设计的储物柜,旁边为休闲空间。


儿童房
“这儿是我们的成长的天地,也是我们梦想起飞的地方!”


因有俩男孩子,同房、两床并排形式,增加俩弟兄感情
空间充足的书桌、书柜设计,可以满足兄弟俩日后同时步入学习阶段的功能所需


根据整体风格选用卡通、简洁、生动活泼的墙纸


进门位设计的到顶衣柜可以方便、满足兄弟俩的以后的生活需要


主人房
美式墙纸上,朵朵绽放的花儿,打破了原有深色家具的沉闷


整体居室充满了艺术气息,彰显业主的品味,流露出主人低调而从容的生活态度

为工作较为繁忙的主人设计了一个阅读区,方便偶尔的加班



本帖子中包含更多资源

您需要 登录 才可以下载或查看,没有账号?立即注册

×
回复 支持 反对

使用道具 举报

该用户从未签到

1767

主题

1009

回帖

8710

积分

金牌会员

积分
8710
 楼主| 发表于 2016-6-10 10:18:42 | 显示全部楼层


在主卧设计了一个独立的衣帽间,实现了女主人最大的梦想!



长辈房
长辈房质朴 ,大方而富有深度。 不张扬,也不喧嚣,给人宁静之感



用进门处的凹位设计到顶衣柜,尽可能的把空间利用起来



卫生间
主 卫   
在主卫特意设计的凹位中预留多一个电热水器位置,为业主日后可以根据自己的需要提供多了一个选择!!!---好设计就在身边,只待我们来发现


侧面看,热水器隐藏凹位之中,不显凌乱


   客  卫


卫浴空间层次分明,蓝色渐变的仿古砖,将浓郁的古朴自然表现得淋漓尽致。


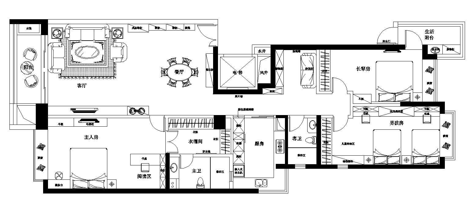
平面设计图



本帖子中包含更多资源

您需要 登录 才可以下载或查看,没有账号?立即注册

×
回复 支持 反对

使用道具 举报

该用户从未签到

0

主题

2

回帖

239

积分

中级会员

积分
239
发表于 2016-6-10 10:27:15 | 显示全部楼层
支持支持
回复 支持 反对

使用道具 举报

您需要登录后才可以回帖 登录 | 立即注册

本版积分规则

室内设计工具箱

QQ|手机版|Archiver|室内人 ( 辽ICP备05022379号 )

GMT+8, 2025-12-19 12:16

Powered by Discuz! X3.5关于室内人 | QQ:3459039404(客服) | Email:snren_com@163.com

© 2001-2025 Discuz! Team.

快速回复 返回顶部 返回列表