找回密码
 立即注册

QQ登录

只需一步,快速开始


vray材质库
查看: 20329|回复: 1

[家居] 众舍 | zones 「武汉1818中心公寓」

[复制链接]

该用户从未签到

2440

主题

1233

回帖

8万

积分

论坛元老

积分
85819
发表于 2016-3-7 10:53:38 | 显示全部楼层 |阅读模式
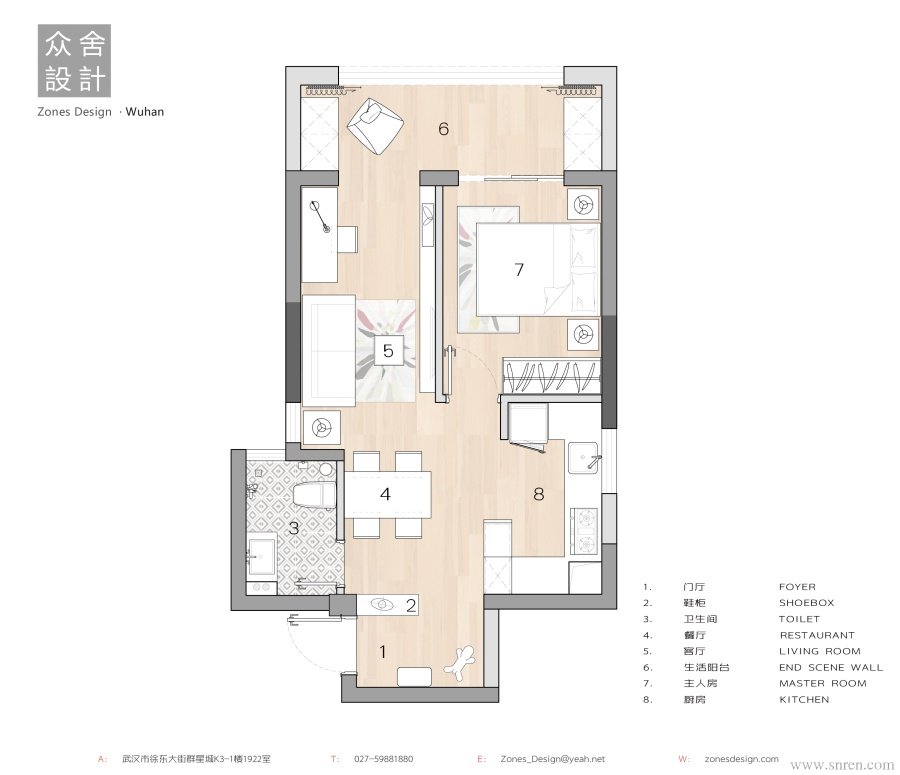
设计/ZONES DESIGN
空间性质/住宅空间
面积/52平米
业主/武汉1818中心公寓
坐落位置/武汉市,武昌区,凯德广场·1818
主要建材/生态板、文化砖、亚克力玻璃
Design / ZONES DESIGN
Space Properties / Residential Space
Area / 52㎡
Owner / Wuhan 1818 Centre Apartments
Located location / Wuhan, Wuchang District, Cade Square · 1818
The main materials / ecological plate, culture brick, acrylic glass

众舍空间设计的最新项目位于武汉市1818中心公寓,毗邻繁华的楚河汉街,占地52平方米,业主是一位IT宅男,他希望自己的家远离工作的干扰,能让自己回家有一种温馨舒适的氛围。
The latest project of ZONES design located in Wuhan City Center apartment 1818, adjacent to the bustling Chu River and Han Street, an area of 52 square meters, the landlord is an IT otaku, he wants to interfere with their home away from work, and to make themselves a home kind of warm and comfortable atmosphere.

设计师以简洁舒适的灰色为基调,试图创造一个安静舒适的家居空间。少量跳色的软装用以平衡空间的暖调氛围。
Designer with simple and comfortable gray tone, trying to create a quiet and comfortable living space. A few hops to balance the color of soft loading space warm tone atmosphere.







本帖子中包含更多资源

您需要 登录 才可以下载或查看,没有账号?立即注册

×
.....提示:网站下载资源都有备份,如遇到下载地址失效请及时联系管理员(QQ:3459039404)恢复下载地址(个别无法恢复会退币)
回复

使用道具 举报

该用户从未签到

2440

主题

1233

回帖

8万

积分

论坛元老

积分
85819
 楼主| 发表于 2016-3-7 10:54:27 | 显示全部楼层




卧室的设计主要强调空间的舒适与活力。简单温馨的床饰配以清新活泼的卡通壁画,让空间有一种难以言喻的独特美感。
Bedrooms are primarily designed to emphasize comfort and dynamic space. Simple cozy bed decorated with fresh and lively cartoon murals, so that space there is a unique indescribable beauty.



本帖子中包含更多资源

您需要 登录 才可以下载或查看,没有账号?立即注册

×
回复 支持 反对

使用道具 举报

您需要登录后才可以回帖 登录 | 立即注册

本版积分规则

室内设计工具箱

QQ|手机版|Archiver|室内人 ( 辽ICP备05022379号 )

GMT+8, 2025-12-18 06:36

Powered by Discuz! X3.5关于室内人 | QQ:3459039404(客服) | Email:snren_com@163.com

© 2001-2025 Discuz! Team.

快速回复 返回顶部 返回列表