找回密码
 立即注册

QQ登录

只需一步,快速开始


vray材质库
查看: 5377|回复: 0

绿地·海外滩“72变”创意设计大赛之优秀作品介绍A2户型(一)

[复制链接]

该用户从未签到

8

主题

0

回帖

73

积分

新手上路

积分
73
发表于 2016-1-11 11:50:50 | 显示全部楼层 |阅读模式
   绿地海外滩户型创意大赛由绿地集团荆州沙市置业有限公司技术管理与产品研发部主办,旨

在挖掘中国本土出色的设计创意,让设计的价值、设计师的个性和特点得以最大程度的发挥,让全

龄段住户在绿地找到理想的家。

    从1月6日开始,绿地海外滩户型创意大赛已开启投票,三个投票渠道同时开启,您可通过任

意渠道为自己喜欢的作品投上宝贵的一票。本次大赛最终将选取4套户型做为绿地外海滩户型的规

划设计图,获奖者将有机会参与绿地集团在全球的设计项目,并受邀加入绿地集团战略合作体系





    时代在变,世界在变,每个年龄阶层的品位也在变,唯一不变的是对“理想家”的执著追求

。绿地集团,世界500强房地产企业,打造中国领先的4.0住宅样板,重新发明“家”。

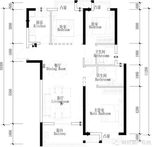
    设计题材:A2户型  115㎡

    设计要求:(户型为框架结构,所有剪力墙、管井位置、尺寸、方向不可改变)

    以建筑户型为原型,针对不同购买人群,设计符合某种居住结构的平面方案,不同的平面要

能体现不同的生活场景

    设计图纸



    A2户型解读

    面积115㎡左右
    难度系数:★★☆
    ◇优势
    1.南北通透、三面采光
    2.客餐厅等宽
    3.双卫生间,主卧带独立卫生间
    4.房间全带飘窗

    参赛者优秀设计介绍

    作品范例1.

    设计师: 田庆

    投票编号: 1



    设计理念与改进方法:与厨房相邻的卧室改造为了书房,是孩子学习的天地,也是大人工作

的独立空间。阳台是感受自然的平台,享受阳光的快乐,吸收自然的气息,难得的午后闲暇。

    优秀作品齐汇聚 动动手指大奖投出来

    本次大赛评选,活动主办方将在充分考虑作品专业程度的基础上,参考网络投票的结果,评

选出各个奖项的获奖作品及选手。



    关注“荆州绿地海外滩”公众号,点击“户型争霸赛投票”,为参赛选手投上宝贵一票


    大赛咨询电话及QQ

    电话TEL:0716-8878308
    手机:18671073505
    咨询qq:2256456561
    咨询qq邮箱:2256456561

本帖子中包含更多资源

您需要 登录 才可以下载或查看,没有账号?立即注册

×
.....提示:网站下载资源都有备份,如遇到下载地址失效请及时联系管理员(QQ:3459039404)恢复下载地址(个别无法恢复会退币)
回复

使用道具 举报

您需要登录后才可以回帖 登录 | 立即注册

本版积分规则

室内设计工具箱

QQ|手机版|Archiver|室内人 ( 辽ICP备05022379号 )

GMT+8, 2025-12-18 06:00

Powered by Discuz! X3.5关于室内人 | QQ:3459039404(客服) | Email:snren_com@163.com

© 2001-2025 Discuz! Team.

快速回复 返回顶部 返回列表