找回密码
 立即注册

QQ登录

只需一步,快速开始


vray材质库
查看: 6054|回复: 0

荆州绿地海外滩“72变”户型创意大赛报名延期啦

[复制链接]

该用户从未签到

8

主题

0

回帖

73

积分

新手上路

积分
73
发表于 2015-12-29 10:36:00 | 显示全部楼层 |阅读模式
    荆州绿地海外滩“72变”户型创意大赛自开赛以来,得到了各路设计师及设计院的积极支持,热情地为大赛建言献策,积极踊跃地提交参赛作品。

    俗话说,慢工出细活。由于户型设计大赛设计作品为系列作品,需提交四个户型图组成套图参赛,参赛者需消耗过多时间与精力。因此,为提高参赛作品质量,应广大参赛者要求,大赛组委会决定延长比赛作品提交时间,其它各环节时间相应顺延。

    为回馈参赛选手们的参赛热情,同时也为了方便荆州地区以外参赛选手领奖,大赛组委会也对奖项设置做了调整,并结合参赛时间的变更制作了新的比赛规则。

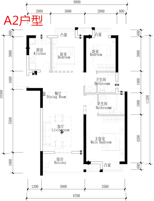
    以下是参赛的户型图。









    赛事评审

    大赛由绿地集团荆州沙市置业有限公司设计中心技术发展部、营销部、网络媒体及购房群体联合评选。

    奖项设置

    一等奖1名:5000元、二等奖2名:3000元、三等奖3名:2000元、创意奖5名:1000元、参与奖:1.荆州万达电影票两张(本地参赛选手) 2.充电宝一个(外地参赛选手)

    除奖金外,更有价值的奖项设置;1-获奖设计师作品将入选绿地集团宣传楼书;2-获奖者将有机会参与绿地集团在各城市的设计项目(涵盖中国29个省市自治区80城,及海外4大洲9国13城);3-获奖者企业将列入绿地集团战略合作体系;4-10余家媒体以微信、网站等形式全方位传播;5-学生可推荐到知名设计公司实习。

    A时间安排

    报名/提交:-2015年12月15日2016年1月5日、大赛评选: 2016年1月6日--1月15日、获奖公布: 2016年1月17日、颁奖时间: 2016年1月17日

    B作品要求• 作品于1月5日前提交至2256456561的扣扣邮箱,附上姓名/个人照片/公司/职位/电话/邮箱。

    参赛选手需将C1/B1/A2/E2四个户型做为全套作品进行设计,不得提交单个设计作品。每个户型需提供1张平面布置图和1张功能分析图,每张图片不低于72dpi,JPG或ppt格式;(需提供作品点评、推荐理由等文字概述)

    大赛咨询电话及报名QQ、电话TEL:0716-8878308、手机:18671073505、报名qq:2256456561、报名邮箱:2256456561扣扣游戏

本帖子中包含更多资源

您需要 登录 才可以下载或查看,没有账号?立即注册

×
.....提示:网站下载资源都有备份,如遇到下载地址失效请及时联系管理员(QQ:3459039404)恢复下载地址(个别无法恢复会退币)
回复

使用道具 举报

您需要登录后才可以回帖 登录 | 立即注册

本版积分规则

室内设计工具箱

QQ|手机版|Archiver|室内人 ( 辽ICP备05022379号 )

GMT+8, 2026-2-28 07:52

Powered by Discuz! X3.5关于室内人 | QQ:3459039404(客服) | Email:snren_com@163.com

© 2001-2026 Discuz! Team.

快速回复 返回顶部 返回列表