找回密码
 立即注册

QQ登录

只需一步,快速开始


vray材质库
查看: 7558|回复: 2

[别墅] 长沙五矿集团浏阳河项目B户型墨西哥风格别墅【榀格设计】

[复制链接]

该用户从未签到

1222

主题

430

回帖

5万

积分

论坛元老

积分
53148
发表于 2015-11-8 20:41:52 | 显示全部楼层 |阅读模式
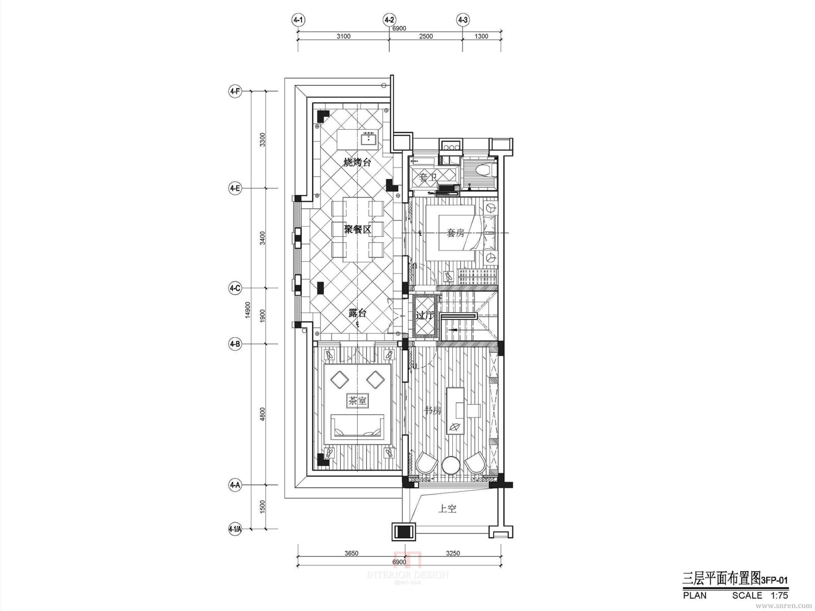
长沙五矿集团浏阳河项目B户型墨西哥风格别墅
Changsha Liuyang River Project
面积/size:205平方米
设计/design:榀格设计
总设计师/chief design:周文胜
参与设计师/project design:陆闻/周杰
竣工时间/completion time:2015年

设计说明:
       现代的墨西哥家居风格完全打破了以往材料和颜色上的束缚,回归到拉丁人热情爽朗的本性中来。环顾客厅,金色的灯光与古典风格相结合,营造出优雅而奢华的居家氛围。红色、金色、黄色等色彩搭配达到极致,充满的尽是明亮与朝气,不经意间,一丝轻爽的闲适风情扑面而来。设计师“调皮”地在客厅的主幅天花及楼梯的梯步镶嵌了特色小花砖,点亮了整体视觉效果之余还增添了生活情趣。两张靠椅静静坐落在客厅一隅,温暖的抱枕和暖毯让居家在一片众声喧哗中保留了一份安宁沉稳。
       进门玄关与餐厅之间设有雕花隔断端景墙,为半通透的玄关空间增加了趣味性。玄关地面采用马赛克地毯图案拼花,色彩艳丽,层次分明,墨西哥风格的热情和斑斓的色彩特性完全释放。餐厅的中空位设计,提升了空间感的同时让入户玄关显得大气通透,二楼的过道和餐厅产生了紧密的互动关系。本案在一些小细节上展现独特个性,门套的设计有别于一般传统的手法,我们把门套对角线条弧度加以调整,细腻中带点异域风情。







本帖子中包含更多资源

您需要 登录 才可以下载或查看,没有账号?立即注册

×
.....提示:网站下载资源都有备份,如遇到下载地址失效请及时联系管理员(QQ:3459039404)恢复下载地址(个别无法恢复会退币)
回复

使用道具 举报

该用户从未签到

1222

主题

430

回帖

5万

积分

论坛元老

积分
53148
 楼主| 发表于 2015-11-8 20:43:53 | 显示全部楼层






































本帖子中包含更多资源

您需要 登录 才可以下载或查看,没有账号?立即注册

×
回复 支持 反对

使用道具 举报

该用户从未签到

1222

主题

430

回帖

5万

积分

论坛元老

积分
53148
 楼主| 发表于 2015-11-8 20:45:43 | 显示全部楼层






本帖子中包含更多资源

您需要 登录 才可以下载或查看,没有账号?立即注册

×
回复 支持 反对

使用道具 举报

您需要登录后才可以回帖 登录 | 立即注册

本版积分规则

室内设计工具箱

QQ|手机版|Archiver|室内人 ( 辽ICP备05022379号 )

GMT+8, 2026-3-23 02:32

Powered by Discuz! X3.5关于室内人 | QQ:3459039404(客服) | Email:snren_com@163.com

© 2001-2026 Discuz! Team.

快速回复 返回顶部 返回列表