|
21220| 0
|
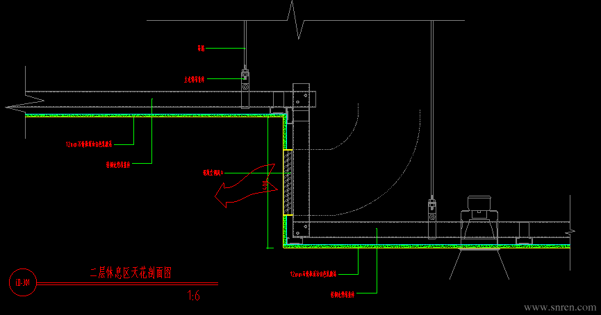
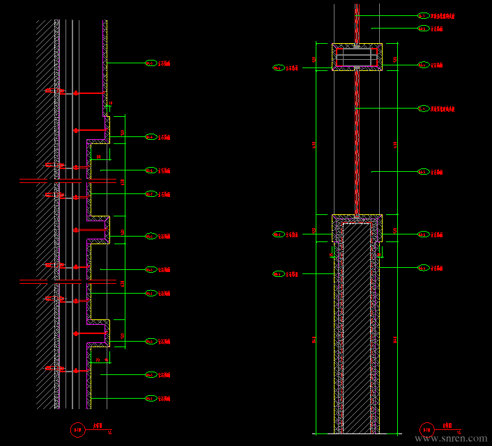
[粱景华] 武汉蔚蓝海岸会所设计全套施工图纸 平面、立面齐全(梁... |
| ||
相关帖子支持室内人!
.....提示:网站下载资源都有备份,如遇到下载地址失效请及时联系管理员(QQ:3459039404)恢复下载地址(个别无法恢复会退币) |
||
|手机版|Archiver|室内人
( 辽ICP备05022379号 )
GMT+8, 2026-4-30 04:21
Powered by Discuz! X3.5


关于室内人 | QQ:3459039404(客服) | Email:snren_com@163.com
© 2001-2026 Discuz! Team.