|
23554| 19
|
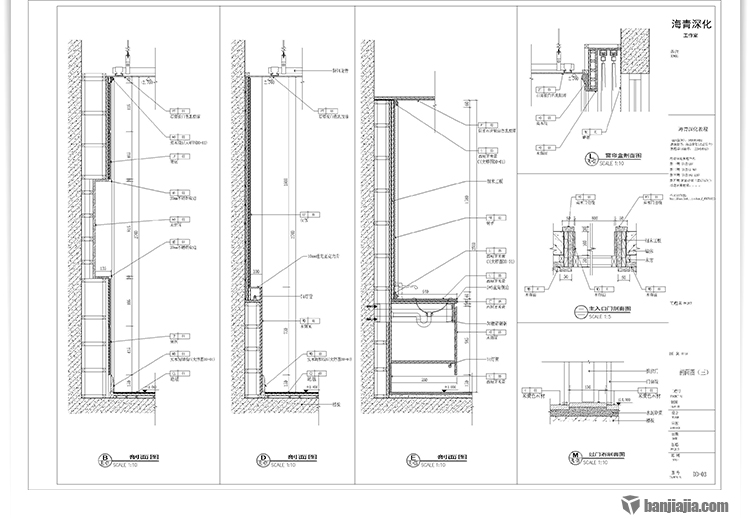
[施工图绘制] 2015酒店标间深化施工图绘制 无播放码 任意播放器可播放 |
| |||||||||||||||
相关帖子.....提示:网站下载资源都有备份,如遇到下载地址失效请及时联系管理员(QQ:3459039404)恢复下载地址(个别无法恢复会退币) |
|||||||||||||||
| ||
| ||
| ||
| ||
| ||
| ||
|手机版|Archiver|室内人
( 辽ICP备05022379号 )
GMT+8, 2026-5-2 09:28
Powered by Discuz! X3.5


关于室内人 | QQ:3459039404(客服) | Email:snren_com@163.com
© 2001-2026 Discuz! Team.