|
6473| 1
|
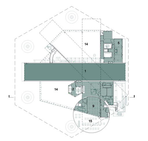
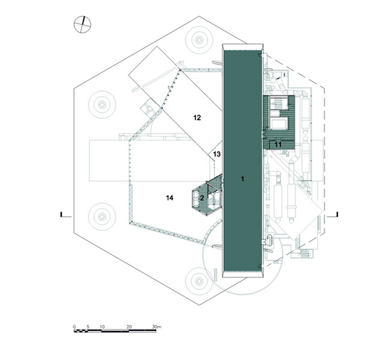
[建筑] 法国蓬皮杜梅斯中心(Centre Pompidou-Metz) -坂茂 |
评分 | ||
|
直销特色椅子,质量可靠,价格实惠,产品实物拍摄,欢迎广大设计师及软装设计公司前往查看-淘宝输入:设计巨蛋
.....提示:网站下载资源都有备份,如遇到下载地址失效请及时联系管理员(QQ:3459039404)恢复下载地址(个别无法恢复会退币) |
||
|手机版|Archiver|室内人
( 辽ICP备05022379号 )
GMT+8, 2025-12-17 17:34
Powered by Discuz! X3.5


关于室内人 | QQ:3459039404(客服) | Email:snren_com@163.com
© 2001-2025 Discuz! Team.