找回密码
 立即注册

QQ登录

只需一步,快速开始


vray材质库
查看: 2835|回复: 0

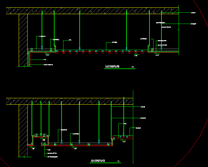
[节点] 办公室节点图

[复制链接]

该用户从未签到

2

主题

0

回帖

87

积分

新手上路

积分
87
发表于 2015-5-28 14:26:03 | 显示全部楼层 |阅读模式
办公室节点图

本帖子中包含更多资源

您需要 登录 才可以下载或查看,没有账号?立即注册

×
.....提示:网站下载资源都有备份,如遇到下载地址失效请及时联系管理员(QQ:3459039404)恢复下载地址(个别无法恢复会退币)
您需要登录后才可以回帖 登录 | 立即注册

本版积分规则

室内设计工具箱

QQ|手机版|Archiver|室内人 ( 辽ICP备05022379号 )

GMT+8, 2026-3-25 11:51

Powered by Discuz! X3.5关于室内人 | QQ:3459039404(客服) | Email:snren_com@163.com

© 2001-2026 Discuz! Team.

快速回复 返回顶部 返回列表