找回密码
 立即注册

QQ登录

只需一步,快速开始


vray材质库
查看: 6117|回复: 0

[办公] 西班牙卡斯特利西尔的YC住宅+工作室

[复制链接]

该用户从未签到

2215

主题

3285

回帖

6万

积分

论坛元老

积分
62844
发表于 2015-3-6 08:53:18 | 显示全部楼层 |阅读模式
       西班牙工作室RTA-Office分享了他们2014年新作,位于西班牙卡斯特利西尔的YC住宅+工作室,他们称这个造型抢眼,如同雕塑般的房屋为“平静中的宁静雕塑”。
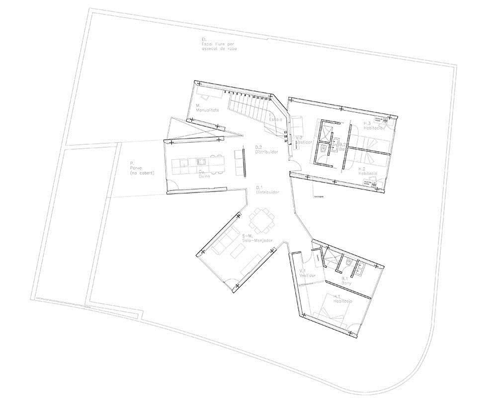
       房屋造型从中心向四周几个方向分叉,形成5个尽端,功能分别是:入口楼梯和工作室,厨房,客厅,套房,儿童卧室。从中心向外,每个屋顶都向上抬起30度,形成具有张力的造型和空间。方向各不同的五个体块风景也各不相同,一年四季,每时每刻,都可以在这所房屋中感受多角度的自然变化。建筑外表皮是一个连续的整体。根据当地法规,建筑色彩必须自然朴实,融入环境,建筑师给建筑选择的色彩介于树干和土壤之间,让建筑完美的融于绿色环境。
       白天,建筑隐藏在树丛中,到了夜晚,建筑像一个发光的耀眼雕塑。
       车库安放在地下一层,双层高的玻璃让室内采光充足,甚至辐射到地下室。建筑也可自然通风,采用地暖进行加热和制冷。


form the architect:
A SILENT SCULPTURE AMIDST CALMNESS
HOUSE AND STUDIO YC

The building is situated in the center of the plot, respecting the limits for construction and plot ratio.
The house rises as a single body. Its shape is influenced by physical and morphological conditions and by the program.
The initial idea of the project is to expand the building up inside the parcel and surrounding existing trees in order to preserve the maximum
possible trees; later the shape was adapted to the program, to acquire the final setting.

Building geometry is divided into five main bodies or pavilions (1. Entrance stair and craft room, 2. Kitchen, 3.Living room, 4.Suite, 5. Children’s
bedroom) separated by patios and all connected by a central distributor that serves the different rooms. This central part is covered by a flat
roof; from this central hall,the five spreads are covered with an inclination of 30º (from the center to the exterior – unlike conventional roofs),
allowing the variation in height between each of the parties and creating an attractive volume.

Each body is isolated from the others, has its own orientation and its own views to the exterior. Courtyards between the bodies allow entrance o
f natural light and integration between interior space and exterior space.


As bodies, also patios have a different orientation. They are like cuts of main body following different angles and spaciousness. In such a way,
visitor never has the same vision and perception of space. Different angles, variety of views, variety of colors, variety of light. That is the main
focus of the house: to capture segments of natural light and their change in space throughout the day and year depending on seasons and
weather.This device contributes to get a changing image of the house. Visitor’s eye could cross different patios and glass reflections offer him
interesting lighting and colors effects.

House skin is continuous; there is no fracture between façades and roof. According to local regulation, skin color is natural and earthy in order to
get a perfect integration between nature and building. Similar to both tree trunk and soil, house color fits in perfectly with the ochre range of
colors of the surrounding. When the trees will grow and complement the existing vegetation, over the years the objective of discovering the
hidden house behind the trees will be achieved.

The house has a very different view at day and at night. During the day it is possible to discover the house hidden behind the vegetation. When
darkness surrounds the building, the illuminated interior gleams and the house shines like a sculpture into the surrounding.

All uses are arranged in underground and ground floor.  Main access is placed in lower level both for pedestrians and cars. From one side it is
possible to reach the main stair to upper floor and from the other side an independent studio with its private entrance. This area gets natural light
thanks to its glass walls and to the double height courtyard that leads light from the bottom to the basement.

Natural ventilation and geothermal heating and cooling are part of the energy plan.


Project Name: HOUSE AND STUDIO YC
Location: Castellcir, Barcelona (Spain)
Area: 290 m2
Completion Date: 2014
Architecture Design: Santiago Parramón, RTA-Office
Interior Design: Santiago Parramón, RTA-Office
Site engineer: Juan Carlos Hernández
Photography: Lorenzo Vecchia Photography
Press release: Simona Assiero Brá
Client: Private




本帖子中包含更多资源

您需要 登录 才可以下载或查看,没有账号?立即注册

×
支持室内人!
.....提示:网站下载资源都有备份,如遇到下载地址失效请及时联系管理员(QQ:3459039404)恢复下载地址(个别无法恢复会退币)
您需要登录后才可以回帖 登录 | 立即注册

本版积分规则

室内设计工具箱

QQ|手机版|Archiver|室内人 ( 辽ICP备05022379号 )

GMT+8, 2026-3-23 02:44

Powered by Discuz! X3.5关于室内人 | QQ:3459039404(客服) | Email:snren_com@163.com

© 2001-2026 Discuz! Team.

快速回复 返回顶部 返回列表