|
15127| 35
|
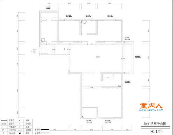
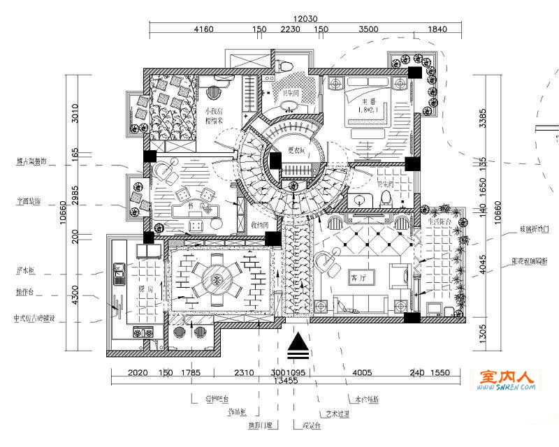
[讨论] 不一样的设计方案-大家看看开阔开阔思路 |

| ||
|
.....提示:网站下载资源都有备份,如遇到下载地址失效请及时联系管理员(QQ:3459039404)恢复下载地址(个别无法恢复会退币) |
||
| ||
| ||
| ||
| ||
| ||
|手机版|Archiver|室内人
( 辽ICP备05022379号 )
GMT+8, 2026-3-19 13:05
Powered by Discuz! X3.5


关于室内人 | QQ:3459039404(客服) | Email:snren_com@163.com
© 2001-2026 Discuz! Team.