找回密码
 立即注册

QQ登录

只需一步,快速开始


vray材质库
查看: 6758|回复: 2

[展示] 雄浑稳重的气质-九夏云水售楼中心

[复制链接]

该用户从未签到

36

主题

1

回帖

101

积分

初级会员

积分
101
发表于 2014-10-9 17:10:18 | 显示全部楼层 |阅读模式
项目名称:九夏云水售楼中心
面积:597平方米
项目地点:云南昆明
完成时间:20139
英文名:RIVERSIDE MANOR
设计师:郑树芬
职务:SCD郑树芬设计事务所设计总监





香港著名设计师,英国诺丁汉大学硕士。90年代初,他毅然辞去摩根大通的高薪职务,在香港创立了自己的第一家设计公司,如今在全国拥有多家设计事务所。经过20多年的发展成功打造过无数个具有国际精品的项目,将中西文化融合做到了极致,同时以其“内敛惊艳”的设计手法完成了诸多明星及社会名流的豪宅官邸。其设计项目遍布中国、日本、东南亚、欧洲等地,在业界享有良好的信誉和口碑,设计作品屡获设计界殊荣,同时也受到国内外媒体的广泛关注,被媒体誉为亚洲最能将中西文化融入当代设计的香港设计大师。





材料: 进口墙纸  瓷砖 木饰面

本套案例位于历史文化名城昆明的国家旅游度假区内,比邻最清澈的采莲河,真正做到了傍水而依。既能近享城市的繁华,又可坐拥周边的高端居住环境,是一个以别墅、洋房为主的低密度高端社区。作为昆明的高端住宅项目之一,九夏云水售楼处延续了项目本身高贵大气的设计理念。中式新古典的基调以及精致的材质搭配体现了高调纯粹的整体项目,呈现出一种雄浑稳重的项目气质。

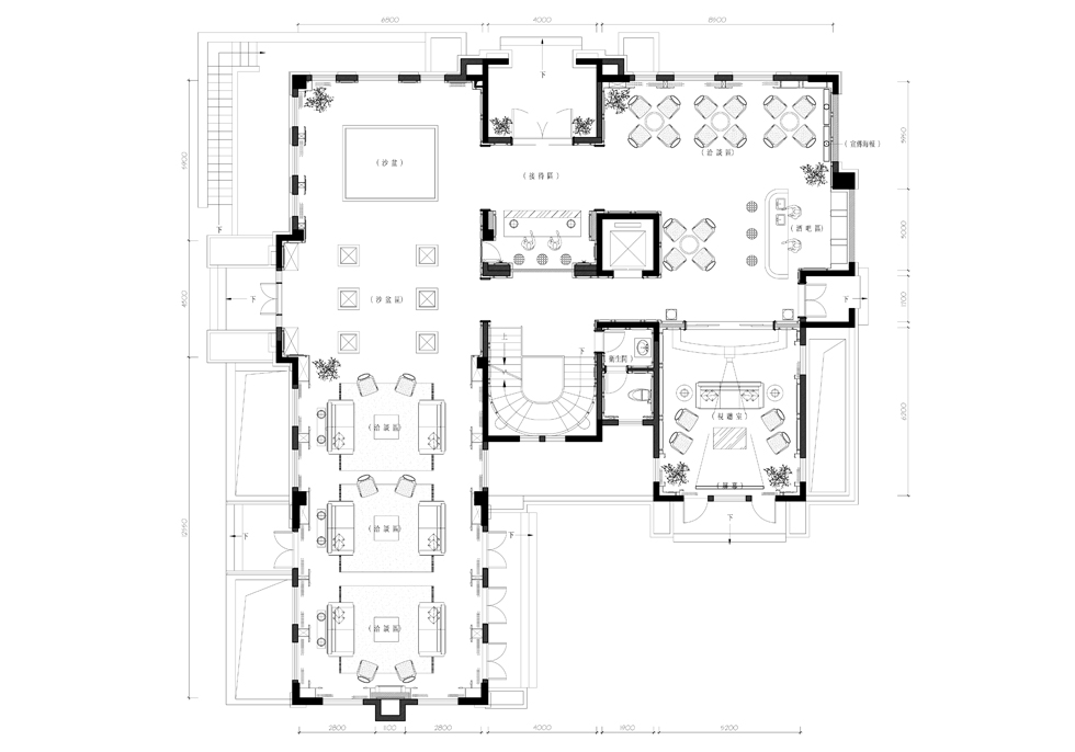
售楼处位于大堂的一、二层,从空间的角度来讲非常气魄,从设计风格来说古典而高贵,接待形式采用了预约式。一层主要是沙盘区和开放式的洽谈区,而二楼以VIP的洽谈区为主。入口大门采用大型铁艺雕花玻璃装饰门,强调质感,给客户专属体验的感受。





一层设计了大型沙盘模型,访客为围绕沙盘从不同角度欣赏项目,也能够经由销售人员带领从另一侧门进入观看。在沙盘区的一侧有三个开放式的洽谈区,空间非常大,专为意向客户准备,可供尽情交流。而接待点的另一侧也有开放式的洽谈以及酒吧区、视听室,让客户休闲享受并能更全方面的了解整个项目的发展与未来。




粗犷的楼梯造型设计延续了项目高层建筑外立面细致的横向线条语言,线条之间透出的柔和光线让楼梯的形式更加立体,提升了空间的纵深感。二层设计较为隐秘,分为VIP洽谈区、经理室、财务室、职员室等,为准客户提供了优质的服务空间。每一个空间庄严大气,移步换景能带来更多尊贵的享受。大面积的红木饰面,同时设计运用不同物料如云石、木材、铁艺装饰门、花纹墙纸,彰显了古典稳重的气派。

本帖子中包含更多资源

您需要 登录 才可以下载或查看,没有账号?立即注册

×
.....提示:网站下载资源都有备份,如遇到下载地址失效请及时联系管理员(QQ:3459039404)恢复下载地址(个别无法恢复会退币)

该用户从未签到

0

主题

8

回帖

65

积分

新手上路

积分
65
发表于 2014-11-18 17:13:51 | 显示全部楼层
感觉很好。。。
回复

使用道具 举报

您需要登录后才可以回帖 登录 | 立即注册

本版积分规则

室内设计工具箱

QQ|手机版|Archiver|室内人 ( 辽ICP备05022379号 )

GMT+8, 2026-3-23 03:07

Powered by Discuz! X3.5关于室内人 | QQ:3459039404(客服) | Email:snren_com@163.com

© 2001-2026 Discuz! Team.

快速回复 返回顶部 返回列表