找回密码
 立即注册

QQ登录

只需一步,快速开始


vray材质库
查看: 13793|回复: 14

[禅味社区] 《每周设计之星》第一期户型设计开始,做好的平面请直接...

[复制链接]
  • TA的每日心情
    开心
    2025-11-6 11:41
  • 签到天数: 2 天

    [LV.1]初来乍到

    127

    主题

    212

    回帖

    2062

    积分

    高级会员

    积分
    2062

    功勋奖章朱雀徽章

    QQ
    发表于 2013-10-17 11:34:00 | 显示全部楼层 |阅读模式
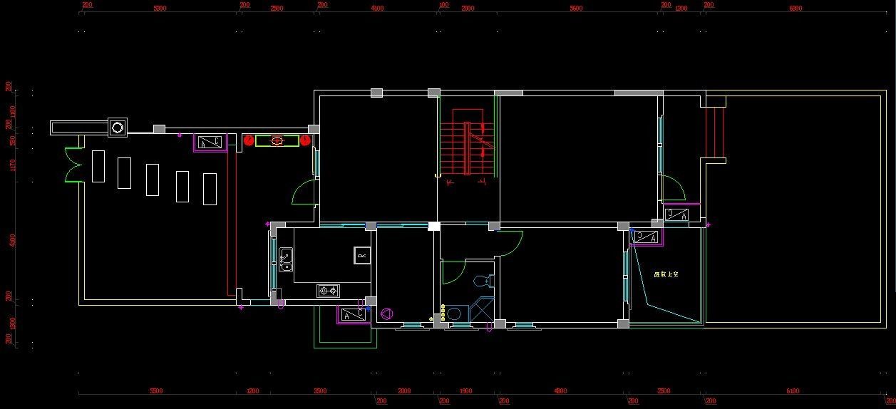
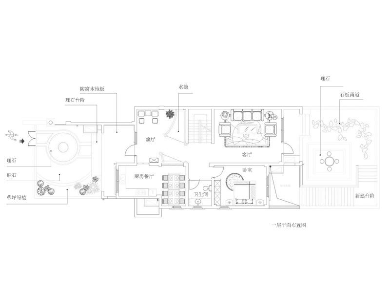
    《每周设计之星》第一期户型设计:

    金地滟澜山户型 (安徽省淮南市)

     家庭成员情况:夫妻二人,小孩,父母

    业主年龄:男业主29岁  女业主29岁  小孩目前1周多

    业主工作单位:夫妻二人均为私营单位上班

    户型朝向:1楼为左北右南    2楼和负一层均为左南右北

    业主要求:

              1.1楼(朝向为左北右南)希望入户时能有一个风水隔断,楼梯附近做一个中式鱼池,小孩很喜欢鱼,一楼要有一个卧室,作为客卧。父母以后年龄大了,也有可能从二楼搬到一楼居住。

     

              2.2楼(朝向为左南右北)主要是作为居住空间。想把书房、卧室集中在二层,卧室是大人小孩都有准备,希望有3个卧室。主卧不设卫生间。书房主要是父亲和男业主使用

     

              3.负一层(朝向为左南右北)准备安排一个储藏室,堆放衣物、被套之类的,想要有一个视听室,以后一家五口在家看看电影啥的。这个视听室是希望以后一家五口享受在电影院的那种感觉

     

    业主风格要求:
        
    一楼中式风格,二楼要简约的,负一层随便好了。
    希望总体设计中,能通过一些隔断、玄关、植物之类的,做出点禅境味道。

    业主预算要求:除家电.床具.灯具.等一切软装类物品外3层共30万 。

    注:业主找个设计公司设计。反映:一楼设计了客厅、餐厅,负一层继续做了客厅、餐厅。这个业主有点受不了了,装饰公司设计CAD格式源文件及设计须知压缩包下载:百度网盘下载链接: http://pan.baidu.com/s/1sjBLAnN 密码: w8ay
    备份下载地址:http://pan.baidu.com/share/link?shareid=3094006082&uk=1292640030

     



          本次户型设计模拟真实需求开展,前期只进行户型设计如果需要涉及后期将会和业主联系相关资金支出,谁设计的户型得到采用将再此基础上进行后期制作与费用协商。关于本次策划由禅味户型组发起,室内人及八零“设”区为唯一发布信息渠道,请认准发布渠道不要相信除开这之外的其他信息!欢迎参赛者联系禅味户型组管理QQ:360237418或1524753390 

    本帖子中包含更多资源

    您需要 登录 才可以下载或查看,没有账号?立即注册

    ×
    本是无味,食而有味,禅味设计课堂伴你成长! 禅味社区网络课堂【YY语音频道】:97764208 招募各类讲师管理助教,联系QQ:1524753390
    .....提示:网站下载资源都有备份,如遇到下载地址失效请及时联系管理员(QQ:3459039404)恢复下载地址(个别无法恢复会退币)
  • TA的每日心情
    开心
    2025-11-6 11:41
  • 签到天数: 2 天

    [LV.1]初来乍到

    127

    主题

    212

    回帖

    2062

    积分

    高级会员

    积分
    2062

    功勋奖章朱雀徽章

    QQ
     楼主| 发表于 2013-10-17 11:37:00 | 显示全部楼层
    期待有兴趣的朋友们加入到户型设计组来........这里不只是比赛还将会有高手们的指点业主的要求,让你感受那种真实和竞争激烈感!参加者可以直接再后面跟帖给上你的户型解析 。。。。。。。

    下面是每周设计之星装饰公司设计CAD格式源文件及设计须知压缩包下载: 

     

    本是无味,食而有味,禅味设计课堂伴你成长! 禅味社区网络课堂【YY语音频道】:97764208 招募各类讲师管理助教,联系QQ:1524753390
    回复 支持 反对

    使用道具 举报

    该用户从未签到

    0

    主题

    5

    回帖

    76

    积分

    新手上路

    积分
    76
    发表于 2013-10-18 14:01:00 | 显示全部楼层
    2580584928我想参加
    回复 支持 反对

    使用道具 举报

  • TA的每日心情
    开心
    2025-11-6 11:41
  • 签到天数: 2 天

    [LV.1]初来乍到

    127

    主题

    212

    回帖

    2062

    积分

    高级会员

    积分
    2062

    功勋奖章朱雀徽章

    QQ
     楼主| 发表于 2013-10-18 16:16:00 | 显示全部楼层
    以下是引用邓婷婷2013在2013-10-18 14:01:00的发言:
    2580584928我想参加
    你QQ加不了,你可以去上面链接地址下载CAD源文件然后自己进行平面方案的设计,好了之后在此贴后面以图片形式跟出就行了
    本是无味,食而有味,禅味设计课堂伴你成长! 禅味社区网络课堂【YY语音频道】:97764208 招募各类讲师管理助教,联系QQ:1524753390
    回复 支持 反对

    使用道具 举报

    该用户从未签到

    0

    主题

    47

    回帖

    370

    积分

    中级会员

    积分
    370
    发表于 2013-10-23 09:48:00 | 显示全部楼层
    看看
    回复 支持 反对

    使用道具 举报

    该用户从未签到

    12

    主题

    6

    回帖

    453

    积分

    中级会员

    积分
    453
    发表于 2013-10-30 09:43:00 | 显示全部楼层



    本帖子中包含更多资源

    您需要 登录 才可以下载或查看,没有账号?立即注册

    ×
    回复 支持 反对

    使用道具 举报

  • TA的每日心情
    开心
    2025-11-6 11:41
  • 签到天数: 2 天

    [LV.1]初来乍到

    127

    主题

    212

    回帖

    2062

    积分

    高级会员

    积分
    2062

    功勋奖章朱雀徽章

    QQ
     楼主| 发表于 2013-10-30 14:40:00 | 显示全部楼层
    感谢,室内人大赛参与者来参加,支持起来!
    本是无味,食而有味,禅味设计课堂伴你成长! 禅味社区网络课堂【YY语音频道】:97764208 招募各类讲师管理助教,联系QQ:1524753390
    回复 支持 反对

    使用道具 举报

    该用户从未签到

    0

    主题

    2

    回帖

    65

    积分

    新手上路

    积分
    65
    发表于 2013-11-7 14:15:00 | 显示全部楼层
    持续关注中··········
    回复 支持 反对

    使用道具 举报

    该用户从未签到

    0

    主题

    92

    回帖

    65

    积分

    新手上路

    积分
    65
    发表于 2013-11-12 17:39:00 | 显示全部楼层
    Looking ~
    回复 支持 反对

    使用道具 举报

    该用户从未签到

    14

    主题

    171

    回帖

    117

    积分

    初级会员

    积分
    117
    发表于 2013-11-13 09:40:00 | 显示全部楼层
    学习下方案设计、、、
    回复 支持 反对

    使用道具 举报

    您需要登录后才可以回帖 登录 | 立即注册

    本版积分规则

    室内设计工具箱

    QQ|手机版|Archiver|室内人 ( 辽ICP备05022379号 )

    GMT+8, 2026-4-30 01:58

    Powered by Discuz! X3.5关于室内人 | QQ:3459039404(客服) | Email:snren_com@163.com

    © 2001-2026 Discuz! Team.

    快速回复 返回顶部 返回列表