|
8073| 3
|
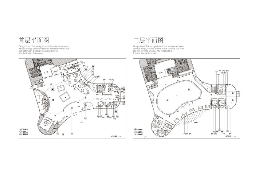
深圳市跨界空间作品赏析--大连中信海港项目销售中心 跨界空间装饰设计软装设计陈设设计售楼部样板房设计 |
| ||
|
跨界空间装饰设计/软装设计/陈设设计/售楼部样板房设计/售楼部样板间设计/酒店会所设
.....提示:网站下载资源都有备份,如遇到下载地址失效请及时联系管理员(QQ:3459039404)恢复下载地址(个别无法恢复会退币) |
||
|手机版|Archiver|室内人
( 辽ICP备05022379号 )
GMT+8, 2026-4-2 06:04
Powered by Discuz! X3.5


关于室内人 | QQ:3459039404(客服) | Email:snren_com@163.com
© 2001-2026 Discuz! Team.